效果图样式1

效果图2

效果图3

效果图4

建筑层数:一层平房
占地尺寸:面宽17.04米x进深13.04米
占地面积:215平方
造价预算:30万以下
建筑总面积/总层高:300平米(不含入户平台、阳台、露台)/总高8.68米
建筑结构:砖混结构
施工图(建施图、结施图、给排水、电路)共30张,效果图4张。
图纸目录:
建筑图:建筑设计总说明、一层平面布置图、二层平面布置图、一层结构尺寸图、两层结构尺寸图、屋顶平面图、南立面图、东立面图、背立面图、西立面图、
结构图:结构设计总说明、基础平面布置图、基础配筋详图、基础柱子配筋图、一层顶梁配筋图、二层顶梁配筋图、一层顶板配筋图、二层顶板配筋图、构造配筋详图、楼梯平面配筋图、楼梯剖面配筋图;
给排水图:给排水设计总说明、一层给排水布置图、二层给排水布置图;
电气图:电气设计总说明、配电箱系统图、一层强电布置图、二层强电布置图、一层弱电布置图、二层弱电布置图、一层插座布置图、二层插座布置图、一层灯控布置图、二层灯控布置图;
给排水图:给排水设计说明、一层给排水平面图、二层给排水平面图、给排水系统图。
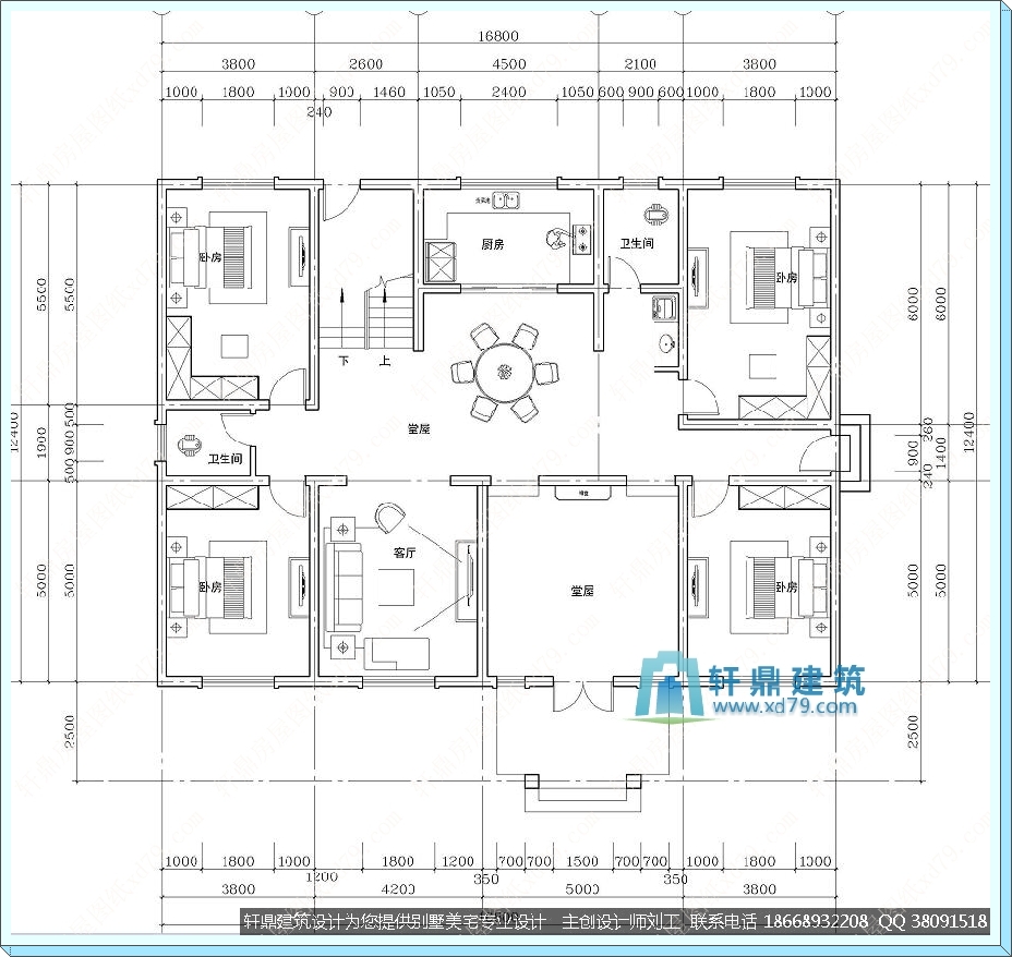
平面功能介绍:
一层:客厅、卧室(4个)、厨房、餐厅、卫生间2个、楼梯,堂屋;
二层:卫生间、卧室(南向)、卧室(北向)。
一层平面图:

二层平面图:

正立面图:

背立面图:

左立面图:

右立面图:

本套图纸经过我公司各专业注册工程师依照国家建筑行业标准设计、修订、审核,已经完全达到国家规范设计标准要求,我们所有的图纸均为施工蓝图,严格按照设计院标准出图,每一套图纸均盖有公司设计公章,盖有设计公章即对别墅设计图纸结构安全负终身责任制,业主朋友可以放心购买,安心建房。
图纸质量决定图纸价格,我们相信高质量的图纸带给建房者的是事半功倍的效果,而有的粗制滥造的设计图纸,带来是大量的施工问题、重复的建材投入、不安全的结构、以及错误百出的细节等等,所以请建房的朋友能慧眼识图,相信轩鼎的实力。
特别说明:我们的这套成品图纸不包修改和调整,因为图纸调整是牵一发动全身,改图甚至比重新设计还要复杂和花费精力,所以我们的图纸都不做修改。
图纸非常详细,若是您喜欢本套风格的设计图,但是图纸尺寸和房间功能不符合实际建房要求,这个可以联系我们这里的主创设计师刘工来按需定制设计,这套全套施工图及效果图设计下来是5000的设计费用,若是地基尺寸正好吻合的也直接购买这个成品图纸的话,这套成品图纸价格是260元,有需要的朋友可以联系我们订购或者定制。