图纸为A3施工激光蓝图+ A4高清效果图照片,不提供电子版,本套成品模板图纸已经完善,不做任何修改,如需定制修改设计请点击="://www.lemeizhai.com/Channel.asp?ChannelID=33">定制设计。
图纸介绍:
山东淄博贾总农村="://www.lemeizhai.com/Picture.asp?PicClassID=88" target="_self" title="二层欧式别墅">二层欧式别墅设计。此款设计图是贾总的第二款别墅了,第一款是一栋三层的农村自建房,和此款设计风格相似。由于贾总非常喜欢这款外观的搭配,目前也还没考虑做几层的自建房,便再做了这栋二层的小洋房。喜欢的朋友可以三层和二层的做一下对比哦。此款设计欧式风格设计元素,米黄色的真石漆搭配红色的琉璃瓦,整体打造温馨舒适的住宅。室内不仅带有飘窗的设计,也预留了电梯井,方便日后加装电梯,方便家人的日常生活。这栋别墅非常适合一家人居住,含全套施工图纸,图纸齐全,请放心购买。
设计功能:
☑ 占地尺寸:12.4*12.2米
☑ 占地面积:143.58㎡
☑ 建筑面积:289.89㎡
☑ 建筑结构:砖混结构
☑ 造价估算:29-34万
☑ 一层建筑面积(包含外墙):143.58㎡
注:占地面积为一层建筑面积(平面图有标注)+外部台阶或连廊的面积,面宽为东西两墙(包括墙体厚度) 的距离,进深为后墙到门楼柱子前端的距离。
施工参数:
建筑层数:地上2层,建筑总高度(到屋脊高度):9.338米,建筑面积:289.89平方米。
结构体系:砖混结构,抗震设防烈度七度,屋面为现浇混凝土屋面。
楼层层高:一层层高3.6米,二层层高3.3米。

后期效果图:

侧面效果图:


俯视效果图:

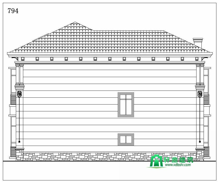
背面效果图:


一层平面图:设有门厅,客厅,餐厅,厨房,卫生间,卧室*2,储藏室。140平方,一共两间卧室,一间可做老人房,另一间做客房,让家人或者客人生活更加舒适。餐厅和厨房相连设计,不仅营造热闹的就餐氛围,带有推拉门的设计,也防止了油烟乱跑。

二层平面图:卧室*3,卫生间*2,活动厅,书房。本层布局主要为生活起居,三间卧室+一间公卫,打造舒适的生活布局,满足一家人的居住需求,书房+套卫,打造安静的办公环境,卫生间也可改为储藏间,收纳不用物品,保持室内干净整洁。

正立面图:

背立面图:

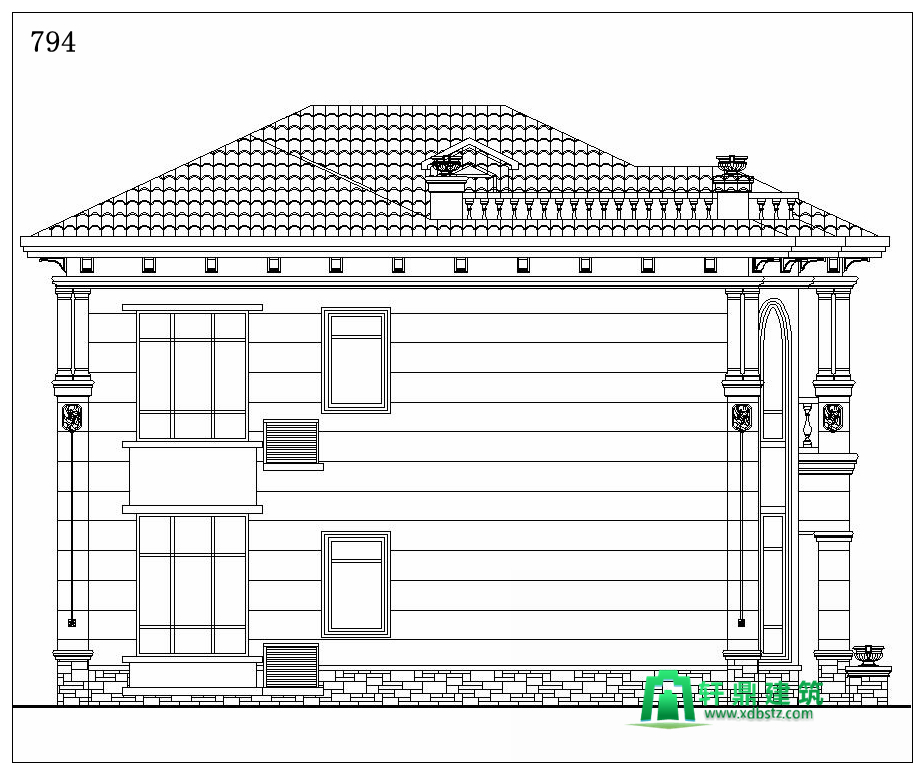
左立面图:

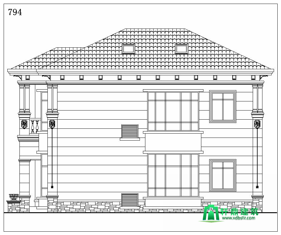
右立面图:
