图纸为A3施工激光蓝图+ A4高清效果图照片,不提供电子版,本套成品模板图纸已经完善,不做任何修改,如需定制修改设计请点击="://www.lemeizhai.com/Channel.asp?ChannelID=33">定制设计。
图纸介绍:
北京苑总="://www.lemeizhai.com/Picture.asp?PicClassID=88" target="_self" title="二层别墅设计">二层别墅设计图案例。苑总的这套设计图是一款非常适合建在农村的自建房,卧室多,空间足,外观造型简约,造价低。整体图纸从方案到各项图纸,都按照苑总的房屋需求来逐一对接与设计。房屋主体采用一楼棕色真石漆搭配二楼米白色真石漆相结合设计。展现别墅的简约温馨。深棕色的大门与色调也是相互呼应,既有沉稳又不失房屋的大气。红色的坡屋顶,不管远处还是近处看,在村里都是十分的亮眼,同时也增强了别墅的整体层次感。背面多扇方形窗户的设计,不仅通风效果好,也提升了视觉感。内含全套施工图,是一款非常温馨实用的自建房屋,请朋友们放心购买。
设计功能:
☑ 占地尺寸:16.6*12.95米
☑ 占地面积:203.99㎡
☑ 建筑面积:412.91㎡
☑ 建筑结构:砖混结构
☑ 造价估算:40-45万
☑ 一层建筑面积(包含外墙):203.99㎡
注:占地面积为一层建筑面积(平面图有标注)+外部台阶或连廊的面积,面宽为东西两墙(包括墙体厚度) 的距离,进深为后墙到门楼柱子前端的距离。
施工参数:
建筑层数:地上2层,建筑总高度(到屋脊高度):10.514米,建筑面积:412.91平方米。
结构体系:砖混结构,抗震设防烈度七度,屋面为现浇混凝土屋面。
楼层层高:一层层高3.75米,二层层高3.57米。

后期效果图:

侧面效果图:


俯视效果图:

背面效果图:


一层平面图: 入门便是客厅,门厅和客厅一起,不仅面积宽敞了,也彰显豪华。餐厅厨房相连,带有独立的门,避免了油烟的污染。也方便家人小聚。三间卧室,其中老人房间带有独立的卫生间,方便老人的日常生活,其余的两间可做为客房,解决客人的留宿问题。

二层平面图:二层设有卧室*3,卫生间,客厅,阳台,卧室+书房+卫。套卫可作为主卧,空间非常的宽敞,书房卧室一体化,方便业主在家工作休息两不误,也可改做衣帽间。其余三间家人居住,宽敞的大客厅,给家人打造舒适居住环境。

正立面图:

背立面图:

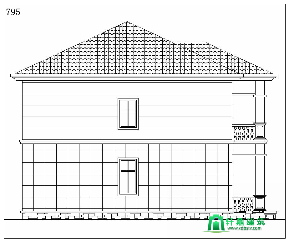
左立面图:

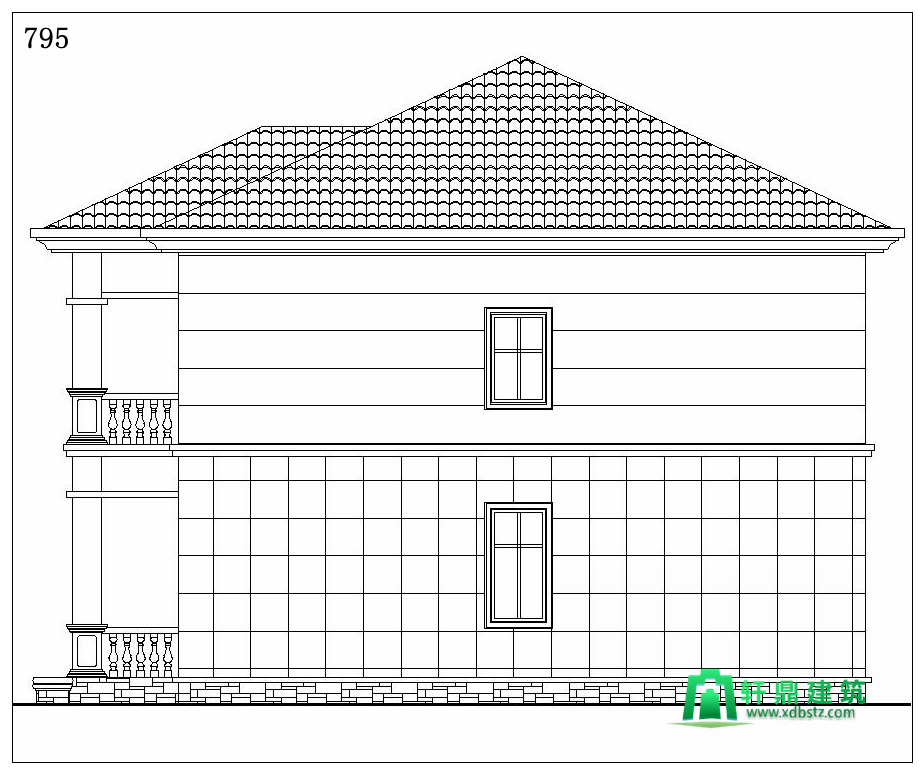
右立面图:
