图纸为A3施工激光蓝图+ A4高清效果图照片,不提供电子版,本套成品模板图纸已经完善,不做任何修改,如需定制修改设计请点击="://www.lemeizhai.com/Channel.asp?ChannelID=33">定制设计。
图纸介绍:
江西南昌市刘总="://www.lemeizhai.com/Picture.asp?type=2&par2=201-300%C6%BD%B7%BD&flag=y&par3=&par4=10.0-13.0m&par5=10.0-13.0m&PicClassID=88&sort=" target="_self" title="占地160平二层欧式自建房设计图">占地160平二层欧式自建房设计图。设计师将别墅外立面采用真石漆搭配灰蓝色坡屋顶。别墅整体温馨、干净、自然。一楼设计带有凸窗造型,层次立体,设计感十足。因客厅面积较大,其中一部分面积也可作为茶室,和亲朋好友品茶聊天。凸窗的设计,不仅室外效果独特美观,室内的空间采光也极佳。二楼两处露台罗马柱连接,造型连贯。这款别墅总建筑面积300平以内,欧式极简风格,占地面积160平左右。非常适合一家人居住,含全套施工图纸,图纸齐全,请放心购买。
设计功能:
☑ 占地尺寸:12.6*13.5米
☑ 占地面积:162.49㎡
☑ 建筑面积:284.01㎡
☑ 建筑结构:砖混结构
☑ 造价估算:28-33万
☑ 一层建筑面积(包含外墙):162.49㎡
注:占地面积为一层建筑面积(平面图有标注)+外部台阶或连廊的面积,面宽为东西两墙(包括墙体厚度) 的距离,进深为后墙到门楼柱子前端的距离。
施工参数:
建筑层数:地上2层,建筑总高度(到屋脊高度):9.060米,建筑面积:284.01平方米。
结构体系:砖混结构,抗震设防烈度七度,屋面为现浇混凝土屋面。
楼层层高:一层层高3.7米,二层层高3.5米。

后期效果图:

一层平面图:设有门厅,客厅,卧室*2,卫生间,餐厅,厨房。门厅客厅餐厅一体化设计,彰显室内大气。两间卧室可做长辈房+客卧。

二层平面图:设有卧室*2,书房,卫生间,健身区,露台*2。配有两间卧室。书房的设计,为孩子提供良好的学习空间。健身区域+双阳台的设计休闲娱乐必备。

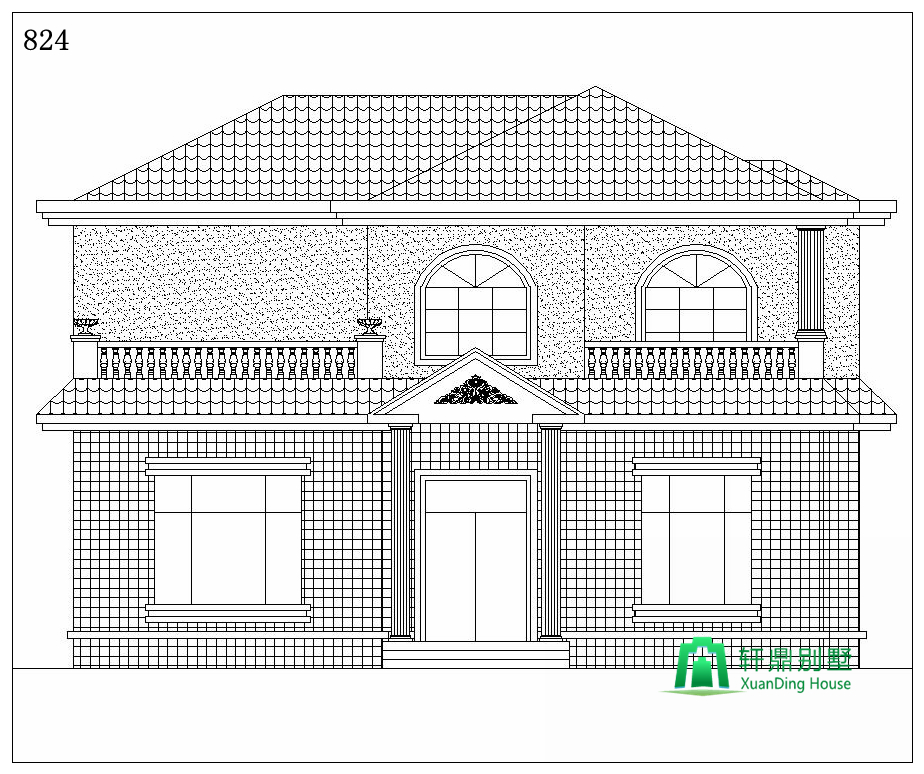
正立面图:

背立面图:

左立面图:

右立面图:
