图纸为A3施工激光蓝图+ A4高清效果图照片,不提供电子版,本套成品模板图纸已经完善,不做任何修改,如需定制修改设计请点击="://www.lemeizhai.com/Channel.asp?ChannelID=33">定制设计。
图纸介绍:
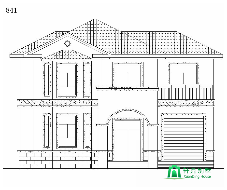
湖南常德刘总="://www.lemeizhai.com/Picture.asp?type=3&par3=21-30%CD%F2&flag=y&par2=&par4=10.0-13.0m&par5=6.0-10.0m&PicClassID=88&sort=" target="_self" title="二层简约设计">二层简约自建房设计案例。本款户型小编看到的给我的感受就是简约又不失大气。加高了门楼的设计,让整栋别墅看起来又更加高端起来。拱形的门楼,独特具有魅力。门窗与窗框用同种褐色调的色彩,别具一格。业主摒弃了其他色彩的真石漆,选用白色涂料,搭配红色的琉璃瓦进行铺设,斜屋顶的设计也便于排水。二楼的铁艺栏杆又为别墅增添了一份小有的独特感,也为家人的休闲娱乐带来足够的空间,也瞬间提升格调。外观上简洁好看,造价成本极大的减少。这栋别墅视觉感满分。图纸齐全,朋友们放心购买。
设计功能:
☑ 占地尺寸:12.3*9米
☑ 占地面积:119.86㎡
☑建筑面积:214.52㎡
☑ 建筑结构:砖混结构
☑ 造价估算:22-26万
☑ 一层建筑面积(包含外墙):119.86㎡
注:占地面积为一层建筑面积(平面图有标注)+外部台阶或连廊的面积,面宽为东西两墙(包括墙体厚度) 的距离,进深为后墙到门楼柱子前端的距离。
施工参数:
建筑层数:地上2层,建筑总高度(到屋脊高度):9.210米,建筑面积:214.52平方米。
结构体系:砖混结构,抗震设防烈度七度,屋面为现浇混凝土屋面。
楼层层高:一层层高3.6米,二层层高3.3米。

后期效果图:

俯视效果图:

背面效果图:

一层平面图:堂屋,客厅,餐厅,厨房,卫生间,车库。一层基本的生活布局,带有堂屋,符合农村建筑,室内车库的设计,留有侧门,方便进出。

二层平面图:卧室*3,露台*2,卫生间,小客厅。三室一厅一卫的设计。满足一家人的住宿需求。带有两个露台的设计。一家三口,每个人都有房间,形成宽敞舒适的布局。

正立面图:

背立面图:

左立面图:

右立面图:
