图纸为A3施工激光蓝图+ A4高清效果图照片,不提供电子版,本套成品模板图纸已经完善,不做任何修改,如需定制修改设计请点击="://www.lemeizhai.com/Channel.asp?ChannelID=33">定制设计。
图纸介绍:
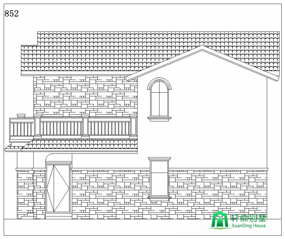
河北涿州市="://www.lemeizhai.com/Picture.asp?type=5&par5=10.0-13.0m&flag=y&par2=&par3=&par4=17.0-20.0m&PicClassID=88&par7=&sort=" target="_self" title="15*12李总二层法式别墅自建房">15*12李总二层法式别墅自建房。法式风格的别墅总有一种庄园风格的感觉,是一种浪漫的标志。李总这款别墅就是属于法式一种。屋顶采用红色的坡屋顶,外墙采用深色文化石,具有很强烈的冲击感。弧形窗户的设计,不仅奢华,外观也独特好看。让别墅提升一个档次。背面和侧面也是大窗户的设计,室内明亮更通透。图纸齐全,请朋友们放心购买。
设计功能:
☑ 占地尺寸:15.24*12.24米
☑ 占地面积:173.91㎡
☑建筑面积:326.41㎡
☑ 建筑结构:砖混结构
☑ 造价估算:33-38万
☑ 一层建筑面积(包含外墙):173.91㎡
注:占地面积为一层建筑面积(平面图有标注)+外部台阶或连廊的面积,面宽为东西两墙(包括墙体厚度) 的距离,进深为后墙到门楼柱子前端的距离。
施工参数:
建筑层数:地上2层,建筑总高度(到屋脊高度):8.872米,建筑面积326.41平方米。
结构体系:砖混结构,抗震设防烈度七度,屋面为现浇混凝土屋面。
楼层层高:一层层高3.6米,二层层高3.3米。

后期效果图:

俯视效果图:

背面效果图:

一层平面图: 客厅,卧室,厨房,餐厅,卫生间。大面积的客厅,通透敞亮,方便业主日常的待客。共有三间卧室,其中一间带有老人卧室,为老人的生活提供了便捷。

二层平面图:客厅,卧室,卫生间,露台。本层四室一厅的设计。不仅单独一个大露台,客厅还带有半圆形露台,造型独特,让外立面更加立体美观。四间卧室的设计,满足了一家人的生活需求。

正立面图:

背立面图:

左立面图:

右立面图:
