图纸为A3施工激光蓝图+ A4高清效果图照片,不提供电子版,本套成品模板图纸已经完善,不做任何修改,如需定制修改设计请点击="://www.lemeizhai.com/Channel.asp?ChannelID=33">定制设计。
图纸介绍:
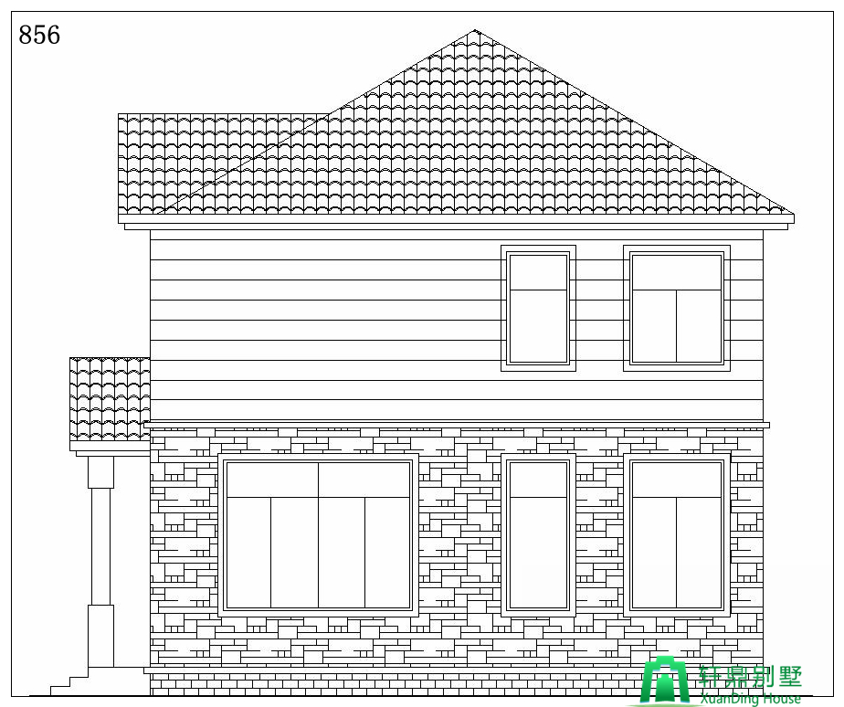
四川南部县="://www.lemeizhai.com/Picture.asp?type=3&par3=21-30%CD%F2&flag=y&par2=&par4=11.0-12.0m&par5=10.0-11.0m&PicClassID=88&par7=&sort=" target="_self" title="占地115平王总二层自建房设计图">占地115平王总二层自建房设计图。王总宅基地在120平以内,需在四川南部县建一栋二层小别墅,给父母居住。这款外立面底部+一楼采用文化石设计,二楼黄色真石漆相搭配。屋顶则是不过时的红色琉璃瓦。带有一个小面积阳台,方便日常的晾晒被褥等。虽然面积不太大,但处处彰显别墅设计细节,三角形门头以及门厅处两根方柱,都能展现别墅的风采。喜欢这款风格的朋友们,不容错过此套户型!图纸齐全,请放心购买。
设计功能:
☑ 占地尺寸:11.74*10.52米
☑ 占地面积:114.20㎡
☑建筑面积:224.22㎡
☑ 建筑结构:砖混结构
☑ 造价估算:23-28万
☑ 一层建筑面积(包含外墙):114.20㎡
注:占地面积为一层建筑面积(平面图有标注)+外部台阶或连廊的面积,面宽为东西两墙(包括墙体厚度) 的距离,进深为后墙到门楼柱子前端的距离。
施工参数:
建筑层数:地上2层,建筑总高度(到屋脊高度):10.127米,建筑面积224.22平方米。
结构体系:砖混结构,抗震设防烈度七度,屋面为现浇混凝土屋面。
楼层层高:一层层高3.9米,二层层高3.3米。

后期效果图:

俯视效果图:

背面效果图:

一层平面图: 客厅,餐厅,厨房,卧室,卫生间。一间卧室设计作为长辈房使用,楼梯下方也合理的利用面积做了洗衣房。

二层平面图: 卧室,卫生间,阳台。本层以居住为主。共有四间卧室,满足王总一家人的住宿需求。

正立面图:

背立面图:

左立面图:

右立面图:
