图纸为A3施工激光蓝图+ A4高清效果图照片,不提供电子版,本套成品模板图纸已经完善,不做任何修改,如需定制修改设计请点击="://www.lemeizhai.com/Channel.asp?ChannelID=33">定制设计。
图纸介绍:
广西李总="://www.lemeizhai.com/Picture.asp?type=3&par3=31-40%CD%F2&flag=y&par2=&par4=12.0-13.0m&par5=12.0-13.0m&PicClassID=88&par7=&sort=" target="_self" title="两层13*12.8米复式自建房设计图">两层13*12.8米复式自建房设计图。别墅外观以经典的二段式设计为主,一楼采用深褐色真石漆+二楼白色真石漆相拼接。视觉上具有冲击感,腰线以及门窗框用亮色勾勒。这样一栋建筑建在农村,绝对的吸引大家的目光。李总家靠马路,家乡又发展旅游业。准备返乡做民宿。地理位置非常合适。内部布局有多间卧室组成,喜欢这款房屋设计图的朋友可以参考哦。
设计功能:
☑ 占地尺寸:13*12.8米
☑ 占地面积:153.14㎡
☑建筑面积:320.51㎡
☑ 建筑结构:砖混结构
☑ 造价估算:32-37万
☑ 一层建筑面积(包含外墙):153.14㎡
注:占地面积为一层建筑面积(平面图有标注)+外部台阶或连廊的面积,面宽为东西两墙(包括墙体厚度) 的距离,进深为后墙到门楼柱子前端的距离。
施工参数:
建筑层数:地上2层,建筑总高度(到屋脊高度)10.034米,建筑面积320.51平方米。
结构体系:砖混结构,抗震设防烈度七度,屋面为现浇混凝土屋面。
楼层层高:一层层高3.6米,二层层高3.3米。

后期效果图:

俯视效果图:

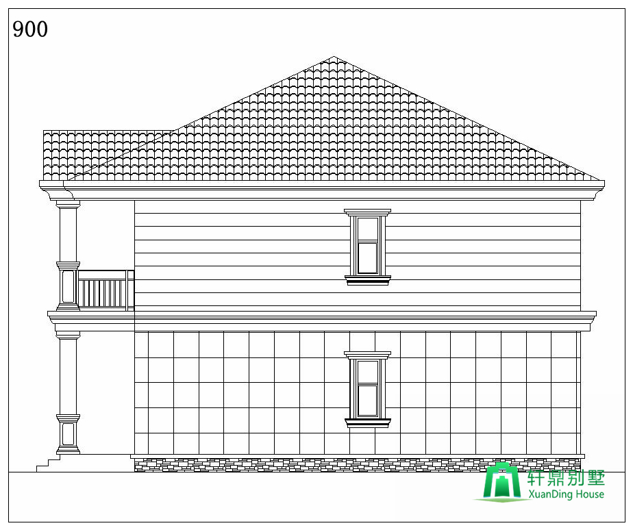
侧面效果图:


背面效果图:


一层平面图: 大厅,卧室,卫生间。本层建筑面积153平方米,共有四间卧室+一间卫生间+大厅组成,适合做民宿。

二层平面图: 卧室,客厅,阳台。二楼共有四间卧室,带有一个小的休息厅,长廊式阳台设计,让旅客多角度欣赏自然风景风貌。

正立面图:

背立面图:

左立面图:

右立面图:
