 |
 |

| 图纸内容 | | 建 筑 图: | 建筑设计说明、建筑做法及门窗表、一层平面图、二层平面图、屋顶平面图、正立面图、背立面图、左立面图、右立面图、楼梯平面图、节点详图一、节点详图二 | | 结 构 图: | 结构设计说明、基础平面布置图、基础详图、一层楼板配筋图、二层楼板配筋图、一层梁结构平面图、二层梁配筋图、屋顶结构平面图、楼梯结构图 | | 给排水图: | 给水、排水设计施工总说明、首层给排水平面图、二层给排水平面图、给水、排水系统图 | | 电 气 图: | 电气设计总说明、目录、图例、强弱电系统图、一层照明平面图、二层照明平面图、一层电气平面图、二层电气平面图、一层弱电平面图、二层弱电平面图、屋顶防雷平面图、基础接地平面图 | | 设计功能 | | 一 层: | 玄关、客厅、卧室1、卧室2、厨房、餐厅、卫生间 | | 二 层: | 主卧带衣柜、书房带阳台、卫生间、卧室3、露台。 | | 本套图纸共四室一厅两卫,总建筑面积221平方米,一层层高3.6米,二层层高3.0米,布局紧凑合理,一层为下沉式客厅,当然对于业主来说,下沉式客厅可以根据自己的实际情况保留或是取消,二楼主卧室的衣帽间位置是可以作为主卫生间备用,根据实际情况可以改为主卫,总之本套房屋设计图是一套非常适合新农村建设的小别墅图纸,图纸非常完善详细。 |
一层平面图: 
二层平面图: 
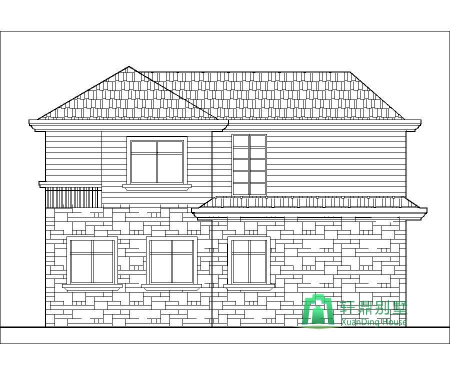
正立面图: 
背立面图: 
西立面图: 
东立面图: 
|
 |
| 本套已经设计好的施工图纸不做修改,因为只要其中一张图纸改动,其它图纸相应均需修改,即牵一发而动全身,甚至比重新设计一套图纸还要麻烦复杂,花费的时间和精力比重新做一套设计图还要多,所以请业主朋友理解。
若是您喜欢本套风格的设计图,但是图纸尺寸和房间功能不符合实际建房要求,可以联系我们的设计师,按照此套设计图外观为您重新量身定制您自己的房屋图纸;或者没有找到合适的风格的设计图,也可按照您的要求来进行按需定制设计。 如有需要请点击 量身定制设计 或是直接联系轩鼎建筑主创设计师刘工, 电话400-079-6579 QQ:38091518 |
 |
特别提示:
本站图纸如果用于建造房屋,为保证建造安全、图纸和实际地质情况相吻合,以及各地施工做法及水平的差异,避免因为直接使用图纸造成的材料浪费或者返工,图纸务必请专业人士验证后,再进行使用!
很多网站以光盘的形式出售图纸,宣称有6000多套甚至更多,请您务必慎重考虑,那些光盘里面大部分只有效果图而没有施工图,有CAD图纸的设计内容也是不完整的,只是方案图而不是施工图,缺少了节点图、结构配筋图、水电图等等,如果您对建筑行业不了解,等收到光盘并付款后发现里面的图纸不完整就于事无补了。选择齐全的施工图纸才能用于建房。 |
|
| 相关评论 |
|
|
 |
|
|