实景外观效果图1:

实景外观效果图2:

施工参数:
建筑层数:地上2层, 建筑总高度:10.15m, 建筑占地面积:237.7平方米, 一层建筑面积:217.6平方米,二层建筑面积:149.6平方米,总建筑面积:367.2平方米,建筑安全等级: 二级。
结构体系: 本工程名称自建房工程,框架结构,抗震设防烈度七度,屋面为现浇混凝土屋面。
参考造价:31-35万,包括外墙装修,不包括内部装修。
墙体材料及厚度: 0.000以下墙体:采用240厚,砌体强度为Mu10,规格为240X115X53mm的水泥实心砖,水泥砂浆强度M7.5砌筑。
墙体:200/240厚加气混凝土砌块砖砌筑。
图纸详情:
建 筑 图:
建筑施工总说明、建筑构造设计说明、一层平面图、二层平面图、阁楼层平面图、屋顶平面图、正立面图、背立面图、东侧立面图、西侧立面图、1-1剖面图、楼梯大样图、节点大样图一、节点大样图二、门窗详图、卫生间详图、门楼大样
结 构 图:
结构设计总说明一、结构设计总说明二、基础平面布置图、基础施工详图、一层梁平法施工图、二层梁平法施工图、坡屋顶梁平法施工图、一层板配筋图、二层板配筋图、坡屋顶板配筋图、楼梯配筋图、节点配筋图一、节点配筋图二
给排水图:
给排水设计总说明、一层给排水平面图、二层给排水平面图、屋顶给排水平面图、给排水系统图
电 气 图:
电气设计说明、设备材料表、配电系统图、弱电系统图、一层照明平面图、二层照明平面图、一层插座平面图、二层插座平面图、一层弱电平面图、二层弱电平面图、屋顶防雷平面图
一层平面图:

二层平面图:

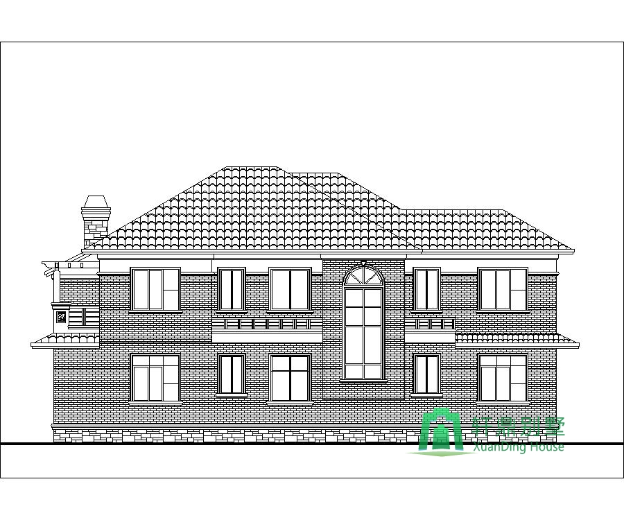
正立面图:

背立面图:

左立面图:

右立面图:

图纸实拍:

本套图纸经过我公司各专业注册工程师依照国家建筑行业标准设计、修订、审核,已经完全达到国家规范设计标准要求,我们所有的图纸均为施工蓝图,严格按照设计院标准出图,每一套图纸均盖有公司设计公章,盖有设计公章即对别墅设计图纸结构安全负终身责任制,业主朋友可以放心购买,安心建房。
图纸质量决定图纸价格,我们相信高质量的图纸带给建房者的是事半功倍的效果,而有的粗制滥造的设计图纸,带来是大量的施工问题、重复的建材投入、不安全的结构、以及错误百出的细节等等,所以请建房的朋友能慧眼识图,相信轩鼎的实力。
轩鼎出品-必属精品