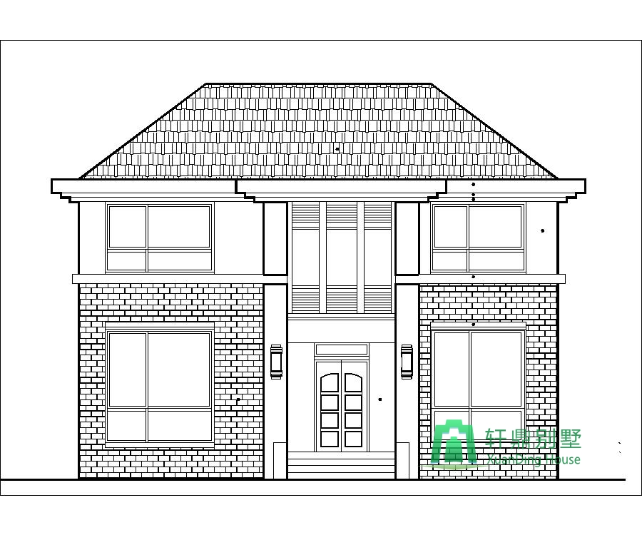
正面效果图:

侧面效果图:

背面效果图:

此套图纸为轩鼎建筑设计公司为湖北黄冈王业主设计的一套轻钢二层小别墅,整体采用薄壁矩形方管作为主骨架,C型檩条作为墙骨架,外墙采用保温一体板。同时此户型业主又要求设计了砖混结构版本,两个版本同时设计完毕,业主用于造价预算和整体性价比的比较。两者版本价格都为498元,喜欢本套图纸的朋友直接点击订购即可。或是需要设计的朋友可以直接联系设计师刘工,电话微信为18668932208
施工参数:
建筑层数:地上2层, 建筑总高度:6.00米,总建筑面积:228.52平方米
结构体系: 有砖混结构和轻钢结构,业主朋友可以自由选择结构版本,抗震设防烈度七度。
结构层高:一层层高3.00米,二层层高3.00米。
图纸详情:
建 筑 图:
建筑施工总说明、建筑构造设计说明、一层平面图、二层平面图、阁楼平面图、屋顶平面图、正立面图、背立面图、左立面图、右立面图、1-1剖面图、楼梯大样图、节点大样图一、卫生间详图、门窗表、门窗大样图等
结 构 图:
砖混结构:结构设计总说明一、结构设计总说明二、基础平面布置图、基础施工详图、一层梁平法施工图、二层梁平法施工图、坡屋顶梁平法施工图、一层板配筋图、二层板配筋图、坡屋顶板配筋图、楼梯配筋图、节点配筋图一等
轻钢结构:柱平面图,墙梁布置图,各个墙面梁详图,楼面梁布置图,屋面檩条布置图,屋架详图,柱详图等
给排水图:
给排水设计总说明、一层给排水平面图、二层给排水平面图、屋顶给排水平面图、给排水系统图等
电 气 图:
电气设计说明、设备材料表、配电系统图、弱电系统图、一层照明平面图、二层照明平面图、一层插座平面图、二层插座平面图、一层弱电平面图、二层弱电平面图、屋顶防雷平面图等
本套图纸经过我公司各专业注册工程师依照国家建筑行业标准设计、修订、审核,已经完全达到国家规范设计标准要求,我们所有的图纸均为施工蓝图,严格按照设计院标准出图,每一套图纸均盖有公司设计公章,盖有设计公章即对别墅设计图纸结构安全负终身责任制,业主朋友可以放心购买,安心建房。
图纸质量决定图纸价格,我们相信高质量的图纸带给建房者的是事半功倍的效果,而有的粗制滥造的设计图纸,带来是大量的施工问题、重复的建材投入、不安全的结构、以及错误百出的细节等等,所以请建房的朋友能慧眼识图,相信轩鼎的实力。
轩鼎出品-必属精品
一层平面图:

二层平面图:

正立面图:

背立面图:

左立面图:

右立面图:
