正面效果图:

侧面效果图:

背面效果图:

施工参数:
建筑层数:地上2层, 建筑总高度:8.335米,总建筑面积:186平方米
结构体系:砖混结构,抗震设防烈度七度,屋面为现浇混凝土屋面。
结构层高:一层层高3.20米,二层层高3.00米。
图纸详情:
建 筑 图:
建筑施工总说明、建筑构造设计说明、一层平面图、二层平面图、阁楼平面图、屋顶平面图、正立面图、背立面图、左立面图、右立面图、1-1剖面图、楼梯大样图、节点大样图一、门楼详图、卫生间详图、门窗表、门窗大样图等
结 构 图:
结构设计总说明一、结构设计总说明二、基础平面布置图、基础施工详图、一层梁平法施工图、二层梁平法施工图、坡屋顶梁平法施工图、一层板配筋图、二层板配筋图、坡屋顶板配筋图、楼梯配筋图、节点配筋图一等
给排水图:
给排水设计总说明、一层给排水平面图、二层给排水平面图、屋顶给排水平面图、给排水系统图等
电 气 图:
电气设计说明、设备材料表、配电系统图、弱电系统图、一层照明平面图、二层照明平面图、一层插座平面图、二层插座平面图、一层弱电平面图、二层弱电平面图、屋顶防雷平面图等
本套图纸经过我公司各专业注册工程师依照国家建筑行业标准设计、修订、审核,已经完全达到国家规范设计标准要求,我们所有的图纸均为施工蓝图,严格按照设计院标准出图,每一套图纸均盖有公司设计公章,盖有设计公章即对别墅设计图纸结构安全负终身责任制,业主朋友可以放心购买,安心建房。
图纸质量决定图纸价格,我们相信高质量的图纸带给建房者的是事半功倍的效果,而有的粗制滥造的设计图纸,带来是大量的施工问题、重复的建材投入、不安全的结构、以及错误百出的细节等等,所以请建房的朋友能慧眼识图,相信轩鼎的实力。
轩鼎出品-必属精品
一层平面图:

二层平面图:

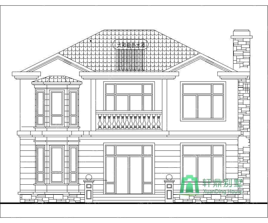
正立面图:

背立面图:

左立面图:

右立面图:

图纸实拍:

此套图纸为轩鼎建筑设计公司设计的一套二层农村自建小别墅。整体采用砖混结构设计,外墙为一楼暗红色三色瓷砖,二楼浅黄色长效外墙漆。设计过程中经过多次修改定稿,终于确定了此外观及平面布局,有喜欢本套图纸的朋友可以直接订购此全套施工图纸,图纸非常详细。
若是您喜欢本套风格的设计图,但是图纸尺寸和房间功能不符合实际建房要求,这个可以联系我们这里的主创设计师刘工来按需定制设计,若是地基尺寸正好吻合的也直接购买这个成品图纸的话,这套成品图纸价格是398元,成品图纸价格并非是设计这套图纸的设计费用,这套全套施工图及效果图设计下来是6000的设计费用,我们的咨询电话及微信为18668932208。