图纸为A3施工激光蓝图+ A4高清效果图照片,不提供电子版,本套成品模板图纸已经完善,不做任何修改,如需定制修改设计请点击="://www.lemeizhai.com/Channel.asp?ChannelID=33" style="font-family: 宋体; font-size: 14px;">定制设计。
图纸介绍:
占地面积98.79平方米三层新中式自建别墅设计图,带有飘窗,内部布局合理,符合较为复杂的地形,此款图纸 是中式建筑结合现代风格,更加符合现代人对外观的要求,是一款不错的设计方案!
设计功能:
☑ 占地尺寸:12.24m*12.54m
☑ 占地面积:98.79㎡
☑ 建筑面积:320.50㎡
☑ 建筑结构:砖混结构
☑ 造价估算:30-40万
注:占地面积为一层建筑面积(平面图有标注)+外部台阶或连廊的面积,面宽为东西两墙(包括墙体厚度)的距离,进深为后墙到门楼柱子前端的距离。
施工参数:
建筑层数:地上3层,建筑总高度(到屋脊高度):12.997米,建筑面积:320.50平方米。
结构体系:砖混结构,抗震设防烈度七度,屋面为现浇混凝土屋面。
楼层层高:一层层高4.2米,二层层高3.1米,三层层高3.1米。

正面效果图:

侧面效果图:

俯视效果图:

背面效果图:

一层平面图:

二层平面图:

三层平面图:

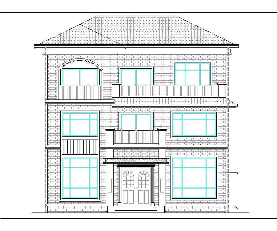
正立面图:

背立面图:

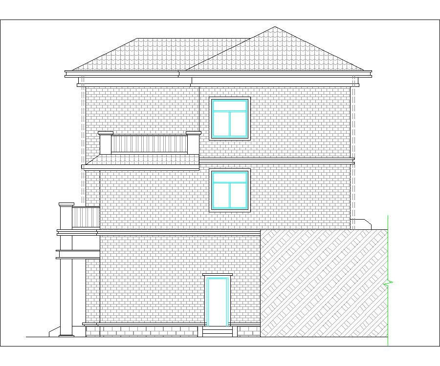
左立面图:

右立面图:
