图纸为A3施工激光蓝图+ A4高清效果图照片,不提供电子版,本套成品模板图纸已经完善,不做任何修改,如需定制修改设计请点击="://www.lemeizhai.com/Channel.asp?ChannelID=33">定制设计。
图纸介绍:
浙江桐乡钟总="://www.lemeizhai.com/Picture.asp?type=5&par5=13.0-17.0m&flag=y&par2=&par3=&par4=13.0-17.0m&PicClassID=91&sort=" target="_self" title="14*16三层欧式别墅自建房">14*16三层欧式别墅自建房设计案例。钟总这套设计不管远观还是近看都是非常亮眼的。占地230平,框架结构。黄色真石漆外立面搭配玻璃元素,凸显欧式时尚。线条流畅,富有朝气。布局简洁实用。宽敞的进门处,左右都带有大方形柱子,展现业主家的庄严气派,凸显整栋别墅的气质。红色坡屋顶的设计,不仅耐看,还有利于排水。两个老虎窗的设计更是恰到好处。适合一家人居住,含全套施工图纸,图纸齐全,请放心购买。
设计功能:
☑ 占地尺寸:14*15.9米
☑ 占地面积:231.05㎡
☑ 建筑面积:641.52㎡
☑ 建筑结构:框架结构
☑ 造价估算:65-70万
☑ 一层建筑面积(包含外墙):231.05㎡
注:占地面积为一层建筑面积(平面图有标注)+外部台阶或连廊的面积,面宽为东西两墙(包括墙体厚度) 的距离,进深为后墙到门楼柱子前端的距离。
施工参数:
建筑层数:地上3层,建筑总高度(到屋脊高度):14.685米,建筑面积:641.52平方米。
结构体系:框架结构,抗震设防烈度七度,屋面为现浇混凝土屋面。
楼层层高:一层层高4.2米,二层层高3.6米,三层层高3.6米。

后期效果图:

背面效果图:

一层平面图:设有客厅,餐厅,厨房,卫生间*2,卧室,衣帽间。客厅与餐厅空间非常宽敞,彰显业主尊贵品质。接待朋友也被倍有面子。30平左右的大厨房,尽显高超厨艺。套房的设计,为老人的居住提供了方便。

二层平面图: 设有卧室*5,卫生间*2。五间卧室+两间卫生间的合适,满足日常的住宿所需。让家人的生活舒适宽敞。

三层平面图: 设有卧室*5,卫生间*2,露台。左右形成套间,中间可做客卧。留更多的朋友在家住宿,也没问题。大露台设计,可尽享与家人下午茶时光。

正立面图:

背立面图:

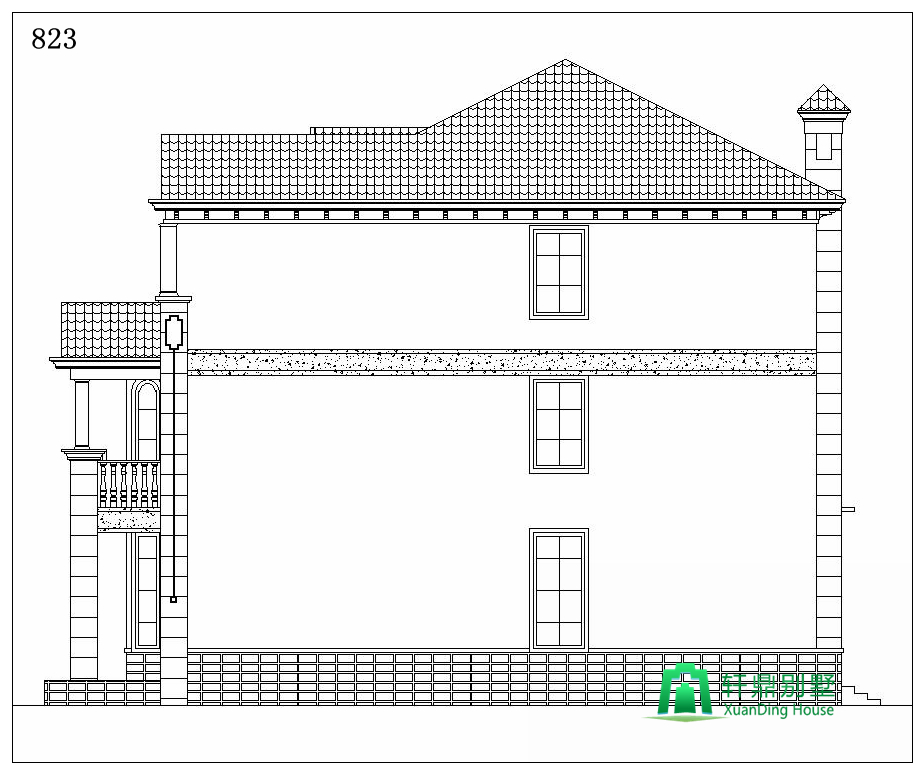
左立面图:

右立面图:
