图纸为A3施工激光蓝图+ A4高清效果图照片,不提供电子版,本套成品模板图纸已经完善,不做任何修改,如需定制修改设计请点击="://www.lemeizhai.com/Channel.asp?ChannelID=33">定制设计。
图纸介绍:
广东东莞刘总定制="://lemeizhai.com/m/Picture.asp?type=2&par2=301-400%C6%BD%B7%BD&flag=y&par3=&par4=10.0-13.0m&par5=10.0-13.0m&par7=&PicClassID=91&sort=" target="_self" title="12*13三层自建房">12*13经典三层农村自建房。为刘总设计的这款别墅风格为欧式风格。黄色文化石+同色调真石漆。是欧式风格设计中的主流色。这个色系显得别墅整体非常的温馨上档次。搭配红色的坡屋顶设计,整体效果更加出彩。门楼的设计,左右两根方形罗马柱,一直通到二楼,一楼门厅+二楼阳台+三楼大露台,显得更加气派。房屋整体高度12米,毛坯40万左右。这栋建筑非常适合建在农村,满足一家人的生活居住。含全套施工图纸,图纸齐全,请朋友们放心购买。
设计功能:
☑ 占地尺寸:12*13.2米
☑ 占地面积:155.88㎡
☑建筑面积:399.67㎡
☑ 建筑结构:砖混结构
☑ 造价估算:40-45万
☑ 一层建筑面积(包含外墙):155.88㎡
注:占地面积为一层建筑面积(平面图有标注)+外部台阶或连廊的面积,面宽为东西两墙(包括墙体厚度) 的距离,进深为后墙到门楼柱子前端的距离。
施工参数:
建筑层数:地上3层,建筑总高度(到屋脊高度):12.085米,建筑面积:399.67平方米。
结构体系:砖混结构,抗震设防烈度七度,屋面为现浇混凝土屋面。
楼层层高:一层层高3.6米,二层层高3.3米,三层层高3.3米。

后期效果图:

俯视效果图:

一层平面图:设有客厅, 厨房,餐厅,卧室,公卫,卧室+卫生间。一楼以居住待客为主。带有长辈卧室以及客卧。餐厨空间设置,为业主和家人提供了便捷。

二层平面图:设有客厅,茶室,阳台,卧室+阳台+卫生间,卧室,公卫。二楼利用客厅的面积,设计了茶室,午后,和家人一起品茶聊天,聊聊最近的趣事。主卧的设计功能齐全,满足业主的便捷生活。

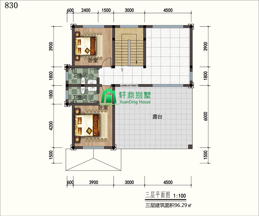
三层平面图: 设有卧室,卧室+卫生间,卫生间,活动室,露台。两家卧室的设计,为朋友的到访,提供了住宿条件。活动室可平日做为亲子活动空间,或者做为书房等,一房多用的功能。大露台的设计,延伸了室外空间,也提升了室内的采光。

正立面图:

背立面图:

左立面图:

右立面图:
