图纸为A3施工激光蓝图+ A4高清效果图照片,不提供电子版,本套成品模板图纸已经完善,不做任何修改,如需定制修改设计请点击="://www.lemeizhai.com/Channel.asp?ChannelID=33">定制设计。
图纸介绍:
湖南苑总="://www.lemeizhai.com/Picture.asp?type=7&par7=140-200%A9O&flag=y&par2=&par3=&par4=13.0-17.0m&par5=10.0-13.0m&PicClassID=91&sort=" target="_self" title="占地170平农村三层欧式别墅自建房设计图">占地170平农村三层欧式别墅房屋设计。苑总这款别墅风格就设计属于欧式风格中的简欧,但从外观图片上就能看出这款效果的美观了吧。没有过多的欧式线条以及构件,节省了很大一部分的开支。建成后的实景图会比效果更加的立体生动好看。外观采用了落地窗的设计,采光良好。背面每层都带有小的休闲观景台,凸显别墅的立体之感。本套图纸内含建筑施工图,结构配筋图,排水施工图,电气施工图,外观效果图,图纸齐全,朋友们放心购买哦!
设计功能:
☑ 占地尺寸:13.26*12.66米
☑ 占地面积:172.46㎡
☑建筑面积:458.86㎡
☑ 建筑结构:砖混结构
☑ 造价估算:46-50万
☑ 一层建筑面积(包含外墙):172.46㎡
注:占地面积为一层建筑面积(平面图有标注)+外部台阶或连廊的面积,面宽为东西两墙(包括墙体厚度) 的距离,进深为后墙到门楼柱子前端的距离。
施工参数:
建筑层数:地上3层,建筑总高度(到屋脊高度):12.425米,建筑面积:458.86平方米。
结构体系:砖混结构,抗震设防烈度七度,屋面为现浇混凝土屋面。
楼层层高:一层层高3.8米,二层层高3.3米,三层层高3.3米。

后期效果图:

一层平面图:客厅,厨房,餐厅,棋牌室,卫生间,休闲台。客厅空间设计的比较宽敞,平时接待朋友,非常的有面子。右侧配有长辈卧室,让老人省去爬楼梯的烦恼。餐厅与厨房相连。酒足饭饱后,可到娱乐室打牌聊天等,配有推拉门的设计,足不出户,就能欣赏美景。

二层平面图:卧室,书房,卫生间,客厅,阳台。本层以生活居住为主,带有小客厅,以及两个小阳台的设计。三间卧室,主次分明。

三层平面图:茶室,卧室,卫生间,露台。两间卧室的设计,可容纳留宿的朋友。苑总平时爱喝茶,为他设计了茶室,推拉门的设计,敞开就可以呼吸新鲜空气,一边品茶,一边赏美景。

正立面图:

背立面图:

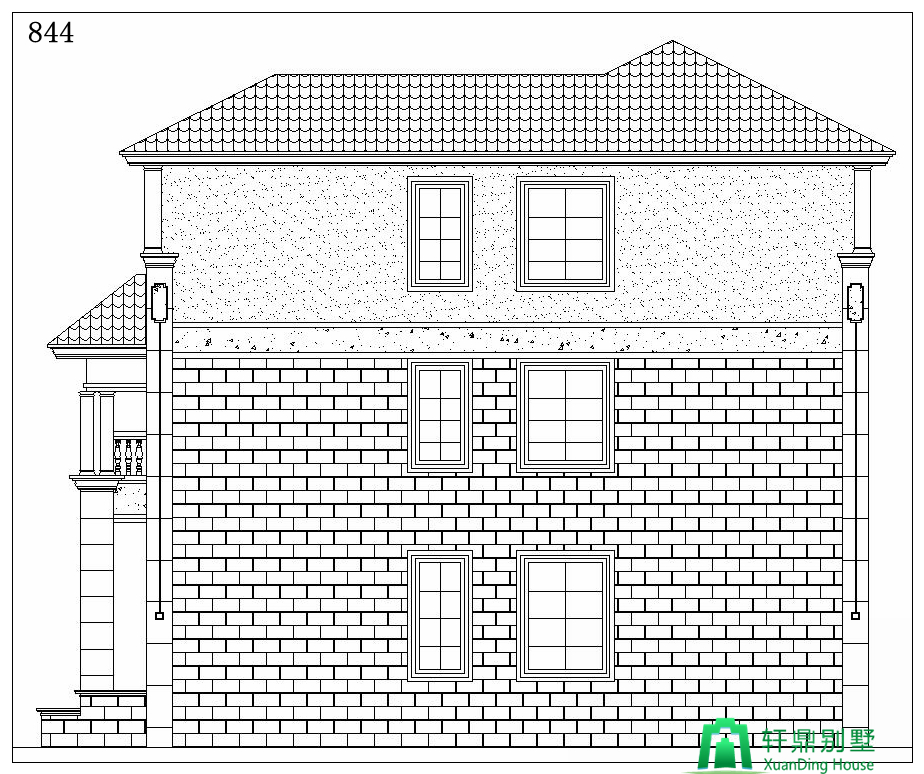
左立面图:

右立面图:
