图纸为A3施工激光蓝图+ A4高清效果图照片,不提供电子版,本套成品模板图纸已经完善,不做任何修改,如需定制修改设计请点击="://www.lemeizhai.com/Channel.asp?ChannelID=33">定制设计。
图纸介绍:
四川吴总="://www.lemeizhai.com/Picture.asp?type=3&par3=41-50%CD%F2&flag=y&par2=301-400%C6%BD%B7%BD&par4=&par5=&PicClassID=91&par7=200%D2%D4%C9%CF%A9O&sort=" target="_self" title="占地230平三层中式别墅设计施工图">占地230平三层中式别墅设计施工图。吴总非常喜欢中式建筑,吴总认为这样风格的建筑具有文化气息。小编带大家看一下此款设计风格。外墙采用白色涂料,搭配灰瓦具有传统典型。内设有八间卧室,满足家人的居住需求,地下一层为家庭娱乐室,一层为接待好友,二三楼自住。非常适合在农村修建。
设计功能:
☑ 占地尺寸:16.7*14.4米
☑ 占地面积:227.6㎡
☑建筑面积:376.12㎡
☑ 建筑结构:框架结构
☑ 造价估算:45-52万
注:占地面积为一层建筑面积(平面图有标注)+外部台阶或连廊的面积,面宽为东西两墙(包括墙体厚度) 的距离,进深为后墙到门楼柱子前端的距离。
施工参数:
建筑层数:地上3层,建筑总高度(到屋脊高度)13.260米,建筑面积376.12平方米。
结构体系:框架结构,抗震设防烈度七度,屋面为现浇混凝土屋面。
楼层层高:一层层高3.9米,二层层高3.3米.三层层高3.3米。

后期效果图:

地下层平面图:茶室,茶厅,酒窖,影音室,会议室,棋牌室,采光天井。多功能于一体的地下室布局设计,这是专属于家人的小天地。

一层平面图:观景平台,中餐厅,卧室,卫生间,储藏室,厨房。室内设计通透明亮,厨房和餐厅于一体,方便日常家人用餐,亲戚朋友较多时,使用圆形大方桌,容纳十多人,营造愉快对的就餐氛围。

二层平面图:卧室,衣帽间,卫生间,观景平台。三间卧室,每间卧室配有卫生间,增加卧室空间,让布局更显大气。

三层平面图:卧室,卫生间,露台。与二楼相同的卧室数量,满足三代人同住的需求,独立的卫生间,保证生活的私密性。露台面积虽不算太大,但日常晾晒或者养花种草却足够了。

正立面图:

背立面图:

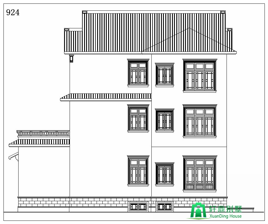
左立面图:

右立面图:
