 |
 |

| 图纸内容 | | 建 筑 图: | 建筑设计说明、一层平面图、二层平面图、三层平面图、屋面平面图、1-4轴立面、4-1轴立面、D-A轴立面、A-D轴立面、1-1剖面图、楼梯详图1、楼梯详图2及门窗表、门窗大样图、结点详图1、结点详图2、结点详图3。共16张 | | 结 构 图: | 结构总说明、构造详图、基础平面布置图、基础详图1、基础详图2、3.970m梁施工图、7.270m梁施工图、10.570m梁施工图、屋面梁配筋图、3.970m板配筋图、7.270m板配筋图、10.570m板配筋图、楼梯立面图、楼梯配筋详图。共14张 | | 给排水图: | 给排水设计说明及图例、一二层给排水平面图、三层及屋顶给排水平面图、厨卫给排水详图、给排水系统图。共5张 | | 电 气 图: | 电气设计说明、电气及弱电系统图、一层及二层电气平面图、一层及二层弱电平面图、三层电气及弱电平面图。共5张 | | 设计功能 | | 一 层: | 入口玄关、客厅、厨房、餐厅、卫生间、客房、车库 | | 二 层: | 客厅、卧室、卫生间、卧室(附书房和卫生间)、卫生间、卧室(附阳台) | | 三 层: | 活动厅、露台、卧室、卧室(附卫生间和书房)、卫生间、卧室、露台 |
本套图纸为砖混结构版本,非复式,一二层均设计有大客厅。对于北方的盖房业主来说,非复式客厅能有效的阻止一层热气上流到二层 一层平面图: 
二层平面图:

三层平面图: 
正立面图: 
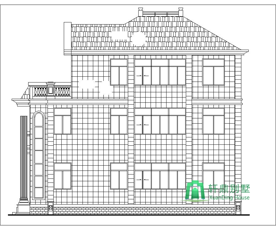
背立面图: 
左立面图: 
右立面图: 
|
 |
| 本套已经设计好的施工图纸不做修改,因为只要其中一张图纸改动,其它图纸相应均需修改,即牵一发而动全身,甚至比重新设计一套图纸还要麻烦复杂,花费的时间和精力比重新做一套设计图还要多,所以请业主朋友理解。
若是您喜欢本套风格的设计图,但是图纸尺寸和房间功能不符合实际建房要求,可以联系我们的设计师,按照此套设计图外观为您重新量身定制您自己的房屋图纸;或者没有找到合适的风格的设计图,也可按照您的要求来进行按需定制设计。 如有需要请点击 量身定制设计 或是直接联系轩鼎建筑主创设计师刘工, 电话400-079-6579 QQ:38091518 |
 |
特别提示:
本站图纸如果用于建造房屋,为保证建造安全、图纸和实际地质情况相吻合,以及各地施工做法及水平的差异,避免因为直接使用图纸造成的材料浪费或者返工,图纸务必请专业人士验证后,再进行使用!
很多网站以光盘的形式出售图纸,宣称有6000多套甚至更多,请您务必慎重考虑,那些光盘里面大部分只有效果图而没有施工图,有CAD图纸的设计内容也是不完整的,只是方案图而不是施工图,缺少了节点图、结构配筋图、水电图等等,如果您对建筑行业不了解,等收到光盘并付款后发现里面的图纸不完整就于事无补了。选择齐全的施工图纸才能用于建房。 |
|
| 相关评论 |
|
|
 |
|
|