您好,欢迎访问轩鼎房屋图纸网,轩鼎建筑为您提供新农村房屋设计图、别墅设计图纸以及别墅定制设计与咨询服务。
 
 
  热门搜索:自建房 别墅设计 房屋设计图   
网站首页 图纸大全 定制设计 作品展示 建房图文 联系我们
一层房屋图纸
二层房屋图纸
三层房屋图纸
四层以上图纸
双拼房屋图纸
其他建筑图纸
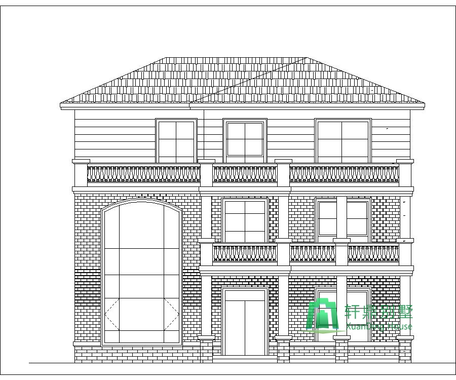
  您现在的位置:首页 ->> 图纸大全 ->> 三层房屋图纸 ->> 13.48X9.98米大气豪华三层农村别墅设计图_三层房屋设计图纸_复式客厅实用三层自建房设计图
图纸名称:13.48X9.98米大气豪华三层农村别墅设计图_三层房屋设计图纸_复式客厅实用三层自建房设计图
点击次数:24905次
13.48X9.98米大气豪华三层农村别墅设计图_三层房屋设计图纸_复式客厅实用三层自建房设计图
  图纸编号: XD078    
  图纸格式: 纸质图纸 建筑形式 框架结构
  建筑面积: 339.2平方米 造价预算: 33-38万
  房屋面宽: 13.48米 占地面积: 140-200㎡
  房屋进深: 9.98米    
  邮  费 全国范围内包邮    
  服务保障
  促销价
¥568.00
  分享到》》:



正面效果图:

背面效果图:

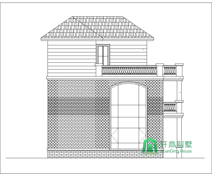
侧面效果图:

侧面效果图:

一层平面图:

nongcunbieshushejituqiang1_眸目压缩.jpg

二层平面图:

nongcunbieshushejituqiang2_眸目压缩.jpg

三层平面图:

nongcunbieshushejituqiang3_眸目压缩.jpg

正立面图:

nongcunbieshushejituazheng.jpg

背立面图:

nongcunbieshushejitubbei.jpg

左立面图:

nongcunbieshushejituczuo.jpg

右立面图:

nongcunbieshushejitudyou.jpg




  本套已经设计好的施工图纸不做修改,因为只要其中一张图纸改动,其它图纸相应均需修改,即牵一发而动全身,甚至比重新设计一套图纸还要麻烦复杂,花费的时间和精力比重新做一套设计图还要多,所以请业主朋友理解。

  若是您喜欢本套风格的设计图,但是图纸尺寸和房间功能不符合实际建房要求,可以联系我们的设计师,按照此套设计图外观为您重新量身定制您自己的房屋图纸;或者没有找到合适的风格的设计图,也可按照您的要求来进行按需定制设计。 如有需要请点击 量身定制设计 或是直接联系轩鼎建筑主创设计师刘工, 电话400-079-6579 QQ:38091518

特别提示:
  本站图纸如果用于建造房屋,为保证建造安全、图纸和实际地质情况相吻合,以及各地施工做法及水平的差异,避免因为直接使用图纸造成的材料浪费或者返工,图纸务必请专业人士验证后,再进行使用!
  很多网站以光盘的形式出售图纸,宣称有6000多套甚至更多,请您务必慎重考虑,那些光盘里面大部分只有效果图而没有施工图,有CAD图纸的设计内容也是不完整的,只是方案图而不是施工图,缺少了节点图、结构配筋图、水电图等等,如果您对建筑行业不了解,等收到光盘并付款后发现里面的图纸不完整就于事无补了。选择齐全的施工图纸才能用于建房。

 相关评论
好评 %
中评 %
差评 %
   共有 0 记录 页次:1/0
  好评 中评 差评
 
  * 验证码
     可以输入500
   
  关于我们 网站事务 帮助中心
客服热线:400-079-6579
客服QQ:10928711 10928755 10928799
地址:山东省潍坊财富大厦1801
 

预定须知
顾客必读
配送方式

 


Copyright 2016 www.lemeizhai.com All Rights Reserved ICP备案序号:鲁ICP备2026012448号-1
轩鼎房屋图纸 电 话:0536-3385581 3385582 传 真:0536-3385581 地 址:山东省潍坊财富大厦1801


keywords:房屋设计图 房屋设计图 农村房屋设计图 农村房屋设计图 建房图文