效果图样式1:

效果图样式2:

施工参数:
建筑层数:地上3层, 建筑总高度:9.800米, 一层建筑面积:183.50平方米,二层建筑面积:183.50平方米,三层建筑面积,126.0平方米,总建筑面积:493.0平方米,建筑安全等级: 二级。
结构体系: 现浇钢筋混凝土框架,抗震设防烈度七度,屋面为现浇混凝土或木屋架屋面。
结构层高:一层层高3.600米,二层层高3.200米,三层层高3.000米。

轩鼎出品-必属精品
一层平面图:

二层平面图:

三层平面图:

正立面图:

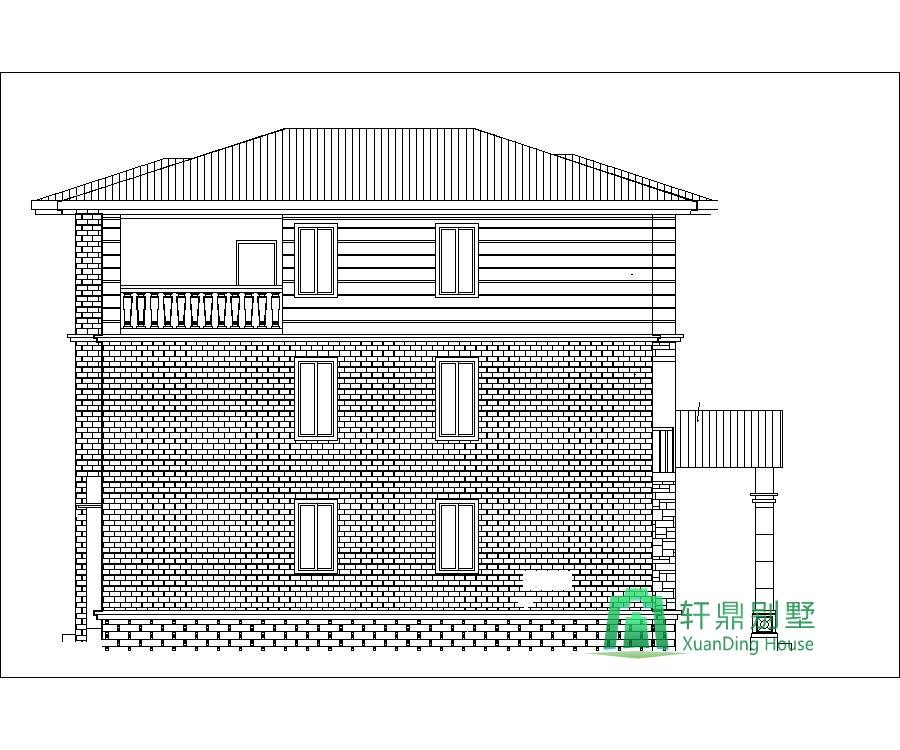
背立面图:

左立面图:

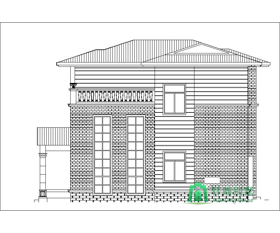
右立面图:
