图纸为A3施工激光蓝图+ A4高清效果图照片,不提供电子版,本套成品模板图纸已经完善,不做任何修改,如需定制修改设计请点击="://www.lemeizhai.com/Channel.asp?ChannelID=33">定制设计。
图纸介绍:
一款非常经典的红砖建筑设计,此款建筑占地尺寸较小,采光良好,外观设计非常的大气,建这款房子,你就是村里最靓的仔!!!
设计功能:
☑ 占地尺寸:9.00*12.30米
☑ 占地面积:125.27㎡
☑ 建筑面积:372.86㎡
☑ 建筑结构:砖混结构
☑ 造价估算:40-45万
☑ 一层建筑面积(包含外墙):108.04㎡
注:占地面积为一层建筑面积(平面图有标注)+外部台阶或连廊的面积,面宽为东西两墙(包括墙体厚度)的距离,进深为后墙到门楼柱子前端的距离。
施工参数:
建筑层数:地上4层,建筑总高度(到屋脊高度):14.085米,建筑面积:372.86平方米。
结构体系:砖混结构,抗震设防烈度七度,屋面为现浇混凝土屋面。
楼层层高:一层层高3.4米,二层层高3.1米,三层层高3.1米,四层层高3.1米。

正面效果图:

侧面效果图:

俯视效果图:

背面效果图:

一层平面图:

二层平面图:

三层平面图:

四层平面图:

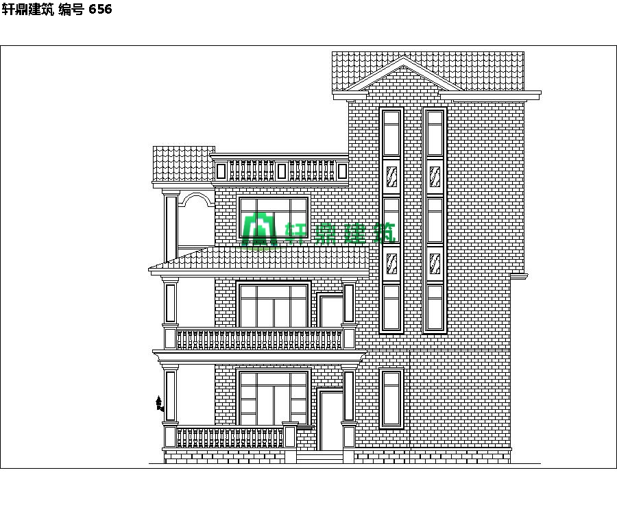
正立面图:

背立面图:

右立面图:

左立面图:
