图纸为A3施工激光蓝图+ A4高清效果图照片,不提供电子版,本套成品模板图纸已经完善,不做任何修改,如需定制修改设计请点击="://www.lemeizhai.com/Channel.asp?ChannelID=33">定制设计。
图纸介绍:
现代四层复式别墅设计套图纸,现代风比较简约,外观配色低调,造型美观新颖,内部布局合理,室内采光通风情况良好,适合一家人居住,含全套施工图纸,图纸齐全,请放心购买。
设计功能:
☑ 占地尺寸:8x16米
☑ 占地面积:123㎡
☑ 建筑面积:434.65㎡
☑ 建筑结构:框架结构
☑ 造价估算:50-55万
☑ 一层建筑面积(包含外墙):123㎡
注:占地面积为一层建筑面积(平面图有标注)+外部台阶或连廊的面积,面宽为东西两墙(包括墙体厚度) 的距离,进深为后墙到门楼柱子前端的距离。
施工参数:
建筑层数:地上2层,建筑总高度(到屋脊高度):16.80米,建筑面积:434.65平方米。
结构体系:框架结构,抗震设防烈度七度,屋面为现浇混凝土屋面。
楼层层高:一层层高4.0米,二层层高3.3米,三层层高3.3米,四层层高3.3米。

正面效果图:

侧面效果图:

俯视效果图:

背面效果图:

一层平面图:

二层平面图:

三层平面图:

四层平面图:

正立面图:

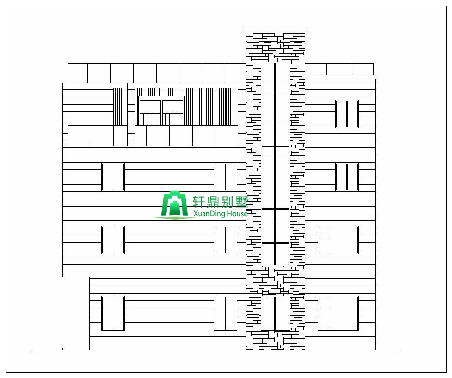
背立面图:

左立面图:

右立面图:
