图纸为A3施工激光蓝图+ A4高清效果图照片,不提供电子版,本套成品模板图纸已经完善,不做任何修改,如需定制修改设计请点击="://www.lemeizhai.com/Channel.asp?ChannelID=33">定制设计。
图纸介绍:
福建上杭县田总="://www.lemeizhai.com/Picture.asp?PicClassID=94" target="_self" title="15.4*12.1米三层带地下车库">15.4*12.1米三层带地下车库设计。田总此款三层带地下室简欧别墅设计全套施工图。地下室面积较大,可停放多辆车,并带有窗户,可保证地下室的通风和采光性。外立面搭配沉稳十足,经久耐看,符合大众的审美。每层都带有连廊阳台设计,在不同楼层观赏角度不同。展现别墅的层次感以及立体感。是一款不错的设计方案。
设计功能:
☑ 占地尺寸:15.4*12.1米
☑ 占地面积:160.68㎡
☑建筑面积:591.92㎡
☑ 建筑结构:框架结构
☑ 造价估算:65-70万
☑ 一层建筑面积(包含外墙):160.68㎡
注:占地面积为一层建筑面积(平面图有标注)+外部台阶或连廊的面积,面宽为东西两墙(包括墙体厚度) 的距离,进深为后墙到门楼柱子前端的距离。
施工参数:
建筑层数:地下一层,地上3层,建筑总高度(到屋脊高度):12.150米,建筑面积591.92平方米。
结构体系:框架结构,抗震设防烈度七度,屋面为现浇混凝土屋面。
楼层层高:一层层高3.6米,二层层高3.3米,三层层高3.3米。

后期效果图:

俯视效果图

背面效果图:

地下室平面图:车库,卧室,卫生间。地下室前后设有明窗,保证地下室的采光和通风问题,避免地下室的阴暗潮湿。车库面积较大,可同时停放多辆车。配有一间卧室,卧室也可改为杂物间,用来存放不常用的物品。

一层平面图: 露台,门厅,客厅,餐厅,厨房,土灶,卧室,卫生间,储藏间。本层功能齐全。客厅位置即可观景。露台可种养一些花草,达到观景效果。配有一间带主卫的老人房。餐厨以及土灶紧挨,缩短用餐范围,也更加便利。

二层平面图:客厅,卧室,厨房,餐厅,卫生间,阳台,露台。独立的楼梯设计,三间卧室+三间卫生间。营造舒适的生活布局。每层都带有餐厅和厨房的设计,可三代同住。

三层平面图:客厅,卧室,厨房,餐厅,卫生间,阳台,露台。独立的楼梯设计,三间卧室+三间卫生间。营造舒适的生活布局。每层都带有餐厅和厨房的设计,可三代同住。

正立面图:

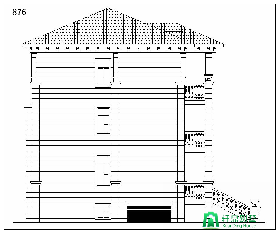
背立面图:

左立面图:

右立面图:
