图纸为A3施工激光蓝图+ A4高清效果图照片,不提供电子版
图纸介绍:
新中式三层自建别墅设计图,带地下室,复式豪华双拼,占地228㎡,内部布局完善,多窗设计增加室内采光和通风,造型新颖,非常适合南方的审美要求,是一款非常好的设计方案。
设计功能:
地下一层:卫生间2、停车场。
一层:单户(门厅、客厅、厨房、餐厅、卧室、卫生间、棋牌室)。
二层:单户(卧室(带露台、卫生间、衣帽间)、书房)。
三层:卧室2(带阳台、衣帽间、卫生间)、卧室、卫生间。
施工参数:
建筑层数:地上3层,地下一层,建筑总高度(到屋脊高度):10.50米,建筑面积:824.80平方米。
结构体系:框架结构,抗震设防烈度七度,屋面为现浇混凝土屋面。
楼层层高:地下一层层高3米,一层层高3米,二层层高3米,三层层高3米。
图纸详情:
建 筑 图:
建筑施工总说明、各层平面图、屋顶平面图、正立面图、背立面图、左立面图、右立面图、1-1剖面图、楼梯大样图、节点大样图等...
结 构 图:
结构设计总说明、基础平面布置图、基础施工详图、各层梁平法施工图、各层板配筋图、楼梯配筋图、节点配筋图等...
给排水图:
给排水设计总说明、各层给排水平面图、屋顶给排水平面图、给排水系统图等...
电 气 图:
电气设计说明、配电系统图、弱电系统图、各层照明平面图、各层插座平面图、各层弱电平面图、接地平面图、屋顶防雷平面图等...
正面效果图:

侧面效果图:

背面效果图:

地下一层平面图:

一层平面图:

二层平面图:

三层平面图:

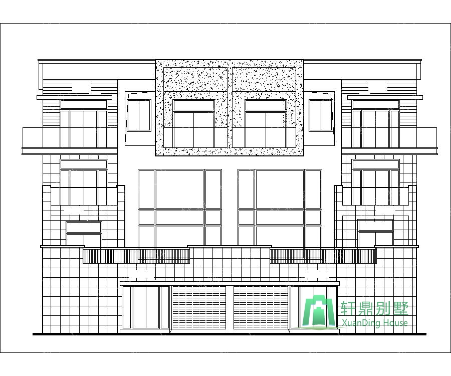
正立面图:

背立面图:

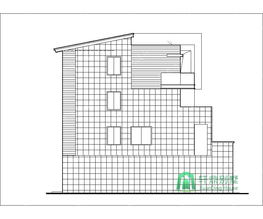
侧立面图:

本套图纸经过我公司各专业注册工程师依照国家建筑行业标准设计、修订、审核,已经完全达到国家规范设计标准要求,我们所有的图纸均为施工蓝图,严格按照设计院标准出图,每一套图纸均盖有公司设计公章,盖有设计公章即对别墅设计图纸结构安全负终身责任制,业主朋友可以放心购买,安心建房。
图纸质量决定图纸价格,我们相信高质量的图纸带给建房者的是事半功倍的效果,而有的粗制滥造的设计图纸,带来是大量的施工问题、重复的建材投入、不安全的结构、以及错误百出的细节等等,所以请建房的朋友能慧眼识图,相信轩鼎的实力。
特别说明:我们的这套成品图纸不包修改和调整,因为图纸调整是牵一发动全身,改图甚至比重新设计还要复杂和花费精力,所以我们的图纸都不做修改。
图纸非常详细,若是您喜欢本套风格的设计图,但是图纸尺寸和房间功能不符合实际建房要求,这个可以联系我们这里的主创设计师刘工来按需定制设计,这套全套施工图及效果图设计下来是5000的设计费用,若是地基尺寸正好吻合的也直接购买这个成品图纸的话,这套成品图纸价格是698元,有需要的朋友可以联系我们订购或者定制。