图纸为A3施工激光蓝图+ A4高清效果图照片,不提供电子版,本套成品模板图纸已经完善,不做任何修改,如需定制修改设计请点击="://www.lemeizhai.com/Channel.asp?ChannelID=33">定制设计。
图纸介绍:
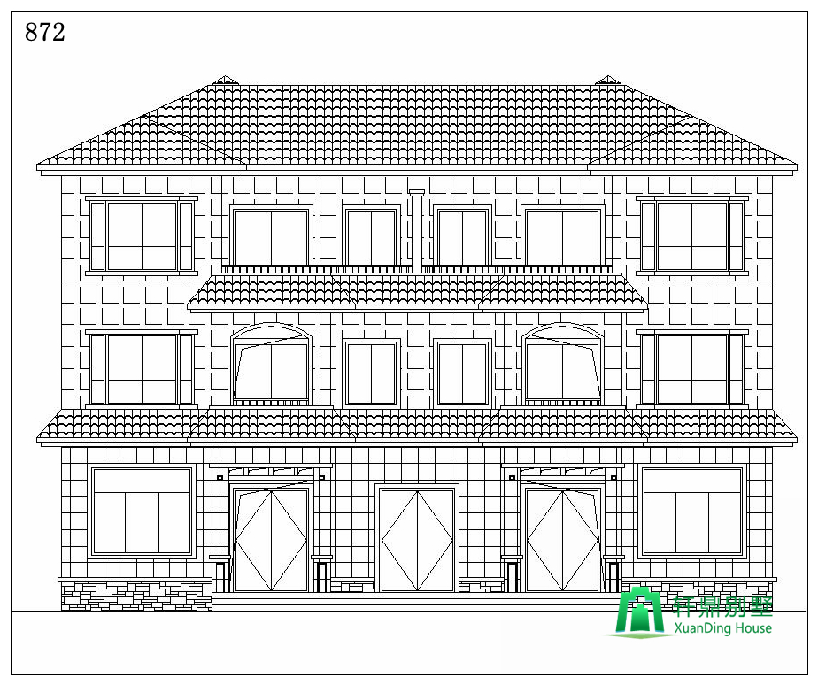
海南三亚崔总="://www.lemeizhai.com/Picture.asp?PicClassID=97" target="_self" title="占地220三层双拼自建房设计">占地220三层双拼自建房设计。此款设计是崔总和弟弟的房屋外观效果图。对称的外观设计,掺许了一些田园元素设计。让整栋房屋更具有设计感。颜色搭配较为丰富。一楼深褐色真石漆+二三楼褐色真石漆,相接而成,层次感强。红色的琉璃瓦再此处就是非常的亮眼了。内部带有堂屋设计,符合农村自建房风俗。门厅处设有入户的台阶,为归家打造满满的仪式感。布局完善,非常适合两家人居住!
设计功能:
☑ 占地尺寸:17.04*14.34米
☑ 占地面积:220.01㎡
☑建筑面积:601.46㎡
☑ 建筑结构:砖混结构
☑ 造价估算:61-65万
☑ 一层建筑面积(包含外墙):220.01㎡
注:占地面积为一层建筑面积(平面图有标注)+外部台阶或连廊的面积,面宽为东西两墙(包括墙体厚度) 的距离,进深为后墙到门楼柱子前端的距离。
施工参数:
建筑层数:地上3层,建筑总高度(到屋脊高度):12.400米,建筑面积601.46平方米。
结构体系:砖混结构,抗震设防烈度七度,屋面为现浇混凝土屋面。
楼层层高:一层层高3.6米,二层层高3.2米,三层层高3.2米。

后期效果图:

俯视效果图:

背面效果图:

一层平面图: 堂屋,每户:客厅,餐厅,厨房,卫生间,卧室。带有堂屋设计,符合农村风俗。一层的是基本的局部设计,一间卧室,适合长辈居住,免去爬楼梯的烦恼。

二层平面图: 每户客厅,卧室,卫生间,书房,阳台。每家两间卧室,一间书房,书房后期卧室不够用,可改为儿童房。客厅与阳台相连,尽显村光美景。

三层平面图:每户卧室,书房,卫生间,阳台,露台。与二楼设计基本相同,将客厅位置换成了大露台。让家人的娱乐空间更加的宽敞。

正立面图:

背立面图:

左立面图:

右立面图:
