正面效果图:

侧面效果图:

背面效果图:

图纸为A3施工激光蓝图+A4高清效果图照片,不提供电子版
图纸介绍:
本户型为豪华大气三层双拼别墅,本方案面积适中,户型合理,农村建房非常有面子
设计功能:
其中一栋的户型
一层:客厅、餐厅、厨房、卧室、卫生间
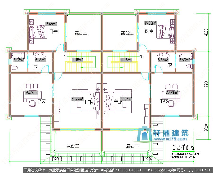
二层:客厅、主卧(带衣帽间和卫生间)卧室、书房、卫生间、露台
三层:卧室、书房、卫生间、大露台
施工参数:
建筑层数:地上3层, 建筑总高度:10.20米,总建筑面积:755.39平方米
结构体系: 砖混结构,抗震设防烈度七度,屋面为现浇混凝土屋面。
结构层高:一层层高3.30米,二层层高3.30米,三层层高3.60米。
图纸详情:
建 筑 图:
建筑施工总说明、一层平面图、二层平面图、三层平面图、屋顶平面图、正立面图、背立面图等...
结 构 图:
结构设计总说明、基础平面布置图、基础施工详图、一层梁平法施工图、二层梁平法施工图、三层梁平法施工图等...
给排水图:
给排水设计总说明、一层给排水平面图、二层给排水平面图、三层给排水图等...
电 气 图:
电气设计说明、配电系统图、弱电系统图、一层照明平面图、二层照明平面图、三层照明平面图等...
本套图纸经过我公司各专业注册工程师依照国家建筑行业标准设计、修订、审核,已经完全达到国家规范设计标准要求,我们所有的图纸均为施工蓝图,严格按照设计院标准出图,每一套图纸均盖有公司设计公章,盖有设计公章即对别墅设计图纸结构安全负终身责任制,业主朋友可以放心购买,安心建房。
图纸质量决定图纸价格,我们相信高质量的图纸带给建房者的是事半功倍的效果,而有的粗制滥造的设计图纸,带来是大量的施工问题、重复的建材投入、不安全的结构、以及错误百出的细节等等,所以请建房的朋友能慧眼识图,相信轩鼎的实力。
一层平面图:

二层平面图:
三层平面图:
特别说明:我们的这套成品图纸不包修改和调整,因为图纸调整是牵一发动全身,改图甚至比重新设计还要复杂和花费精力,所以我们的图纸都不做修改。
图纸非常详细,若是您喜欢本套风格的设计图,但是图纸尺寸和房间功能不符合实际建房要求,这个可以联系我们这里的主创设计师刘工来按需定制设计,这套全套施工图及效果图设计下来是6000的设计费用,若是地基尺寸正好吻合的也直接购买这个成品图纸的话,这套成品图纸价格是998元,我们的咨询电话:0536-3385581 微信为13963655595。