俗话说人靠衣服马靠鞍,房子也不例外,房子不光是一个住的地方也是自己实力的展现,好看的外观也能改善人们的心情,好的别墅是既好看又实用的,一栋就能满足人们需求那种。
效果图

今天这款陆总私人订制的="://www.lemeizhai.com/Picture.asp?PicClassID=91" target="_self" title="三层">三层别墅,133.23平方米的面积几乎能满足所有家庭的需求,别墅外墙主体以米黄色仿大理石真石漆装饰,屋顶是红色琉璃瓦,整体清新淡雅,更显别墅的气质。
基本信息
1、户型编号:JF9156
2、主体毛坯参考造价:38-45万
3、占地面积:133.23平方米
4、建筑面积:355.18平方米
5、开间11.3米,进深12.8米
6、框架结构,建筑高度12.585米
别墅镜像图

别墅细节图


全景展示图




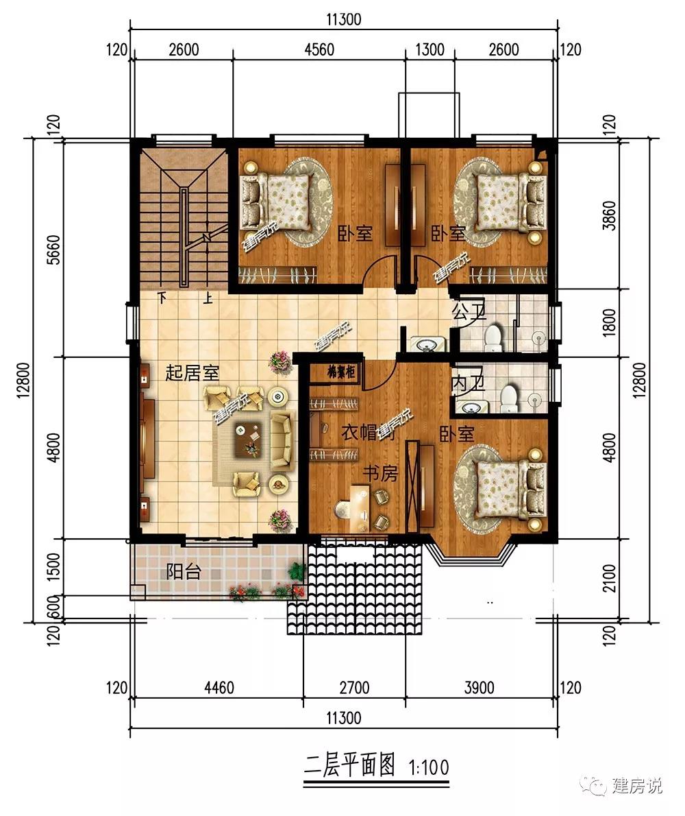
平面布局图

一层:入户即客厅,方便接待客人;设有多入户门,便利生活的同时保持别墅整洁;杂物室设置在楼梯下,空间利用得当。

二层:3个卧室主次分明;起居室便于家人之间沟通与交流;起居室外的阳台设计,利于通风与采光。

三层:3个卧室大小适中,居住舒适;露台面积宽敞,满足晾晒、活动等需求。
转载请注明出自轩鼎别墅设计://www.lemeizhai.com/