别墅效果图:

基本信息:
全景图





内部布局设计图;

富层设计图:设有酒窖储藏室和工具设备间,非常方便,功能用途多,平时的工具都可以放到其中

一层设计图:门前有门廊和室外休闲场所,进门后首先是门厅,还设有客厅厨房和餐厅,还设有两间卧室,还有储藏室和活动室

二层设计图:上楼首先是起居室,还设有两间卧室,衣帽间和书房各一间 ,还有面积宽长的多功能厅,还有面积较大的阳台

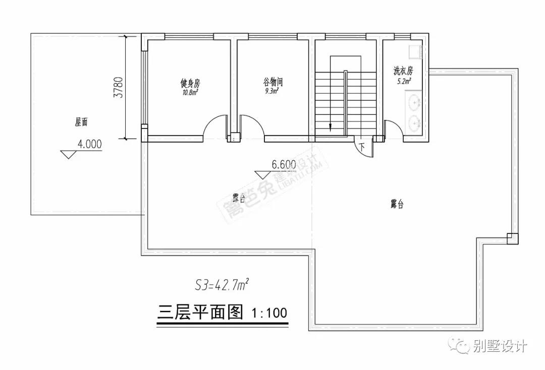
三层设计图:健身房谷物间和洗衣房,其余面积都是露台
转载请注明出自轩鼎别墅设计="://www.lemeizhai.com/" _src="://www.lemeizhai.com/">://www.lemeizhai.com/