有钱宅基又大,就是任性想建什么样的别墅都行,宅基大的人家,别墅款式的选择也比较多,家里有大宅基的人就不要闲着,建一栋豪华大气的别墅不成问题,闲着怪可惜的。在城里买套房,又贵还满足不了需求,还不如在乡下建一栋实用的别墅呢。
今天这款占地130平米的="://www.lemeizhai.com/PictureShow.asp?PicID=1037&PicClassID=91" target="_self" title="三层复式别墅">复式三层别墅你值得拥有一套。
效果图:

立面图:



基本信息:
开间:11.1米
进深:12.3米
占地面积:137.78平方米
建筑面积:414.19平方米
结构形式:="://www.lemeizhai.com/PictureShow.asp?PicID=1037&PicClassID=91" target="_self" title="框架结构">框架结构
平面图:
一层
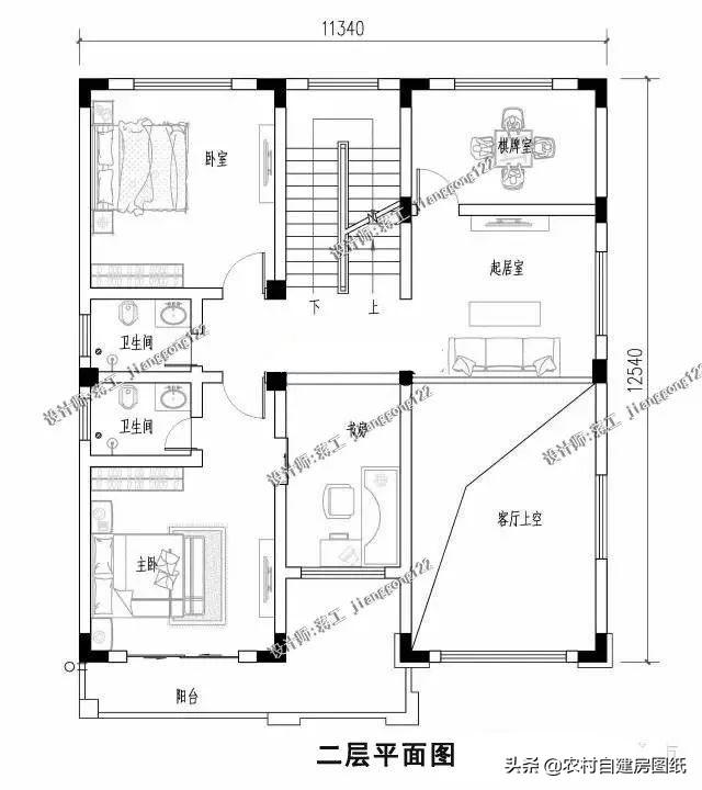
二层

三层

这款图纸功能很强大,三层,一共有9间房,每层都有2个卫生间,一大家子都能住的下。不需要这么多的房间,可以改娱乐室,KTV,健身房、书房、工作室等等,比城里买房划算又舒适,还能坐等升值。
转载请注明出自轩鼎别墅设计="://www.lemeizhai.com/" _src="://www.lemeizhai.com/" style="color: rgb(102, 102, 102); text-decoration-line: none; font-size: 13px; font-family: 宋体; white-space: normal; background-color: rgb(255, 255, 255);">://www.lemeizhai.com/