在乡下建别墅,大多都建二层别墅,风格都喜欢简约跟现代,太过张扬的大多不太喜欢,现代的人都喜欢简单纯朴东西。在乡下建别墅不只是住,更多的是享受,随着人们的生活质量提升,人们开始更加注重生活的品质。今天这款现代简约风格别墅推荐给大家。
效果图:

基本信息:
编号J2030
开间12米
进深10.5米
占地面积128平方米
建筑面积251平方米
结构为="://www.lemeizhai.com/PictureShow.asp?PicID=679&PicClassID=91" target="_self" title="砖混结构">砖混结构
别墅立面图:


本户型为比较简单的复式住宅设计图,客厅挑高,现代风格,在外观造型上,用最为精炼的建筑语言阐释出现代住宅的风格。
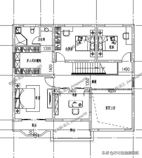
室内布局设计:

一层:进门是堂屋,和复式客厅,非常宽敞通透,主卧室朝南,家里的老人住着非常舒适。一楼还有一间棋牌娱乐室,方便家庭聚会娱乐。厨房和餐厅相邻,有后门方便出行。

二层:设计有三间卧室,带有书房,步入式衣帽间和卫生间,露台朝南,方便观景和休闲。
转载请注明出自轩鼎别墅设计:://www.lemeizhai.com/