在农村建别墅一定要有庭院,没有庭院光一栋别墅,这样多没面子啊。建房一定要选有庭院的别墅图纸,就算是有了庭院,造价还是不到100万,很多家庭都能负担得起,庭院更能保护好自己的隐私,不管怎么样都得有庭院。今天给大家推荐三款设庭院的自建别墅,总有你喜欢的。
别墅户型一:

建筑尺寸:14×11.94米
占地面积:158.57平方米
建筑面积:286.31平方米
室内布局设计:


这是一款简约大气的二层农村别墅,建筑的外观以米黄色的真石漆为主,屋顶下方用白色真石漆过度,使整个立面和谐连接,鲜明的色彩对比,也为立面增加了层次感,暖色调的设计使建筑更灵动更活力。
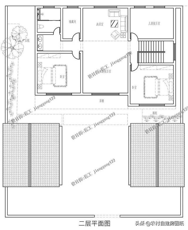
别墅户型二:

建筑尺寸:19.5×234米
占地面积:226平方米
建筑面积:396平方米
室内布局设计:


这是一款留白的苏派建筑,类似三合院格局,整个格局为典形的中式风格,真石漆与仿古青瓦的搭配,让粉墙黛瓦的建筑在庭院掩映中展现出苏派别墅的独特韵味。院内的布局充份结合当地风格,院门后方影壁起到分流作用,保证自用空间私密性。西厢房作为独立民宿配有单独的庭院,餐厅、厨房布置在东南角。
别墅户型三:

建筑尺寸:13.9×10.8米
占地面积:140.4平方米
建筑面积:240.7平方米
室内布局设计:


转载请注明出自轩鼎别墅设计:://www.lemeizhai.com/