在农村建别墅怎么能没有院子呢,今天小编推荐一款四合院性质的新中式别墅。这款别墅私密性强,采光良好,庭院的设计十分令人满意,安全感倍增。这样一款别墅真的好
效果图:

别墅信息:
占地尺寸:14m×18m
占地面积:174.8平方米
建筑面积:316.2平方米
立面图:




这是一款整体风格为新中式风格的二层别墅,入户的庭院是典形的中式大院,庭院内各个功能分区明确,影壁,人行道,休闲区,花架等,组成一个温馨舒适的农家小院。
室内布局设计:

一层设计有车库,门直接通向外院,方便出行。进门是玄关和大堂,非常通透。

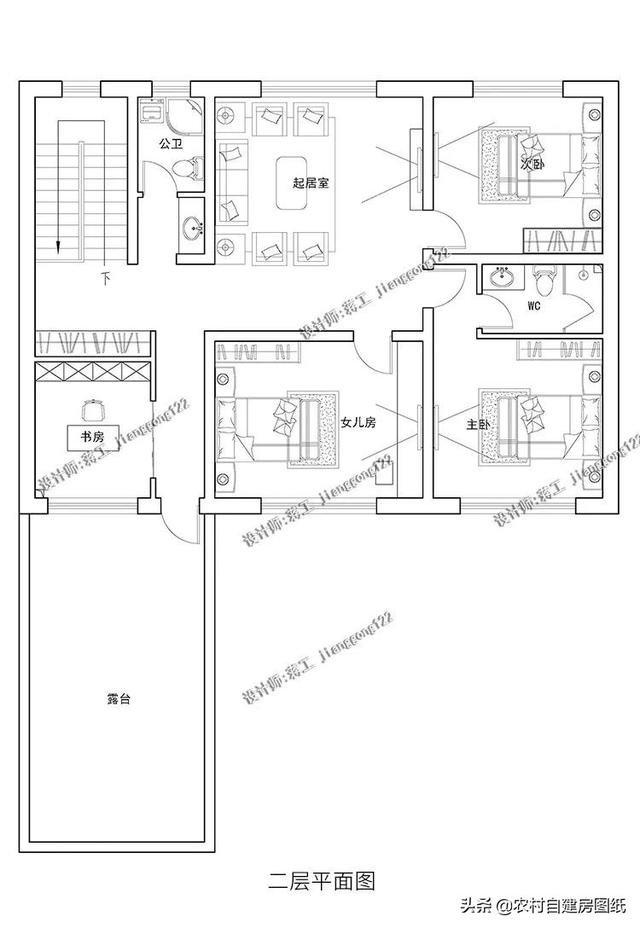
二层设计有三间卧室和一间书房,并带有起居室,主卧室均在南方,充份利用了坐北朝南的优势。
转载请注明出自轩鼎别墅设计://www.lemeizhai.com/