在农村建别墅的人越来越多,又能住又能做商铺的别墅,想必是某些人最想要的。今天小编推荐一款这样的别墅,在路边有宅基的可以考虑选择这样的别墅 。建这样的别墅,工作生活两不误。
效果图:

户型基本信息:
开间:10米,进深:12米
占地面积:124.44平方米
建筑面积:475平方米
首层高度:4.8米
建筑高度:16.4米
结构类型:="://www.lemeizhai.com/PictureShow.asp?PicID=822&PicClassID=91" target="_self" title="框架结构">框架结构
主体造价参考:50-55万左右
全景图:



外墙装饰用到的主要材料有褐色面砖、灰色真石漆、白色涂料和湿挂大理石板等,斜屋面上用红色的釉面瓷瓦铺装。
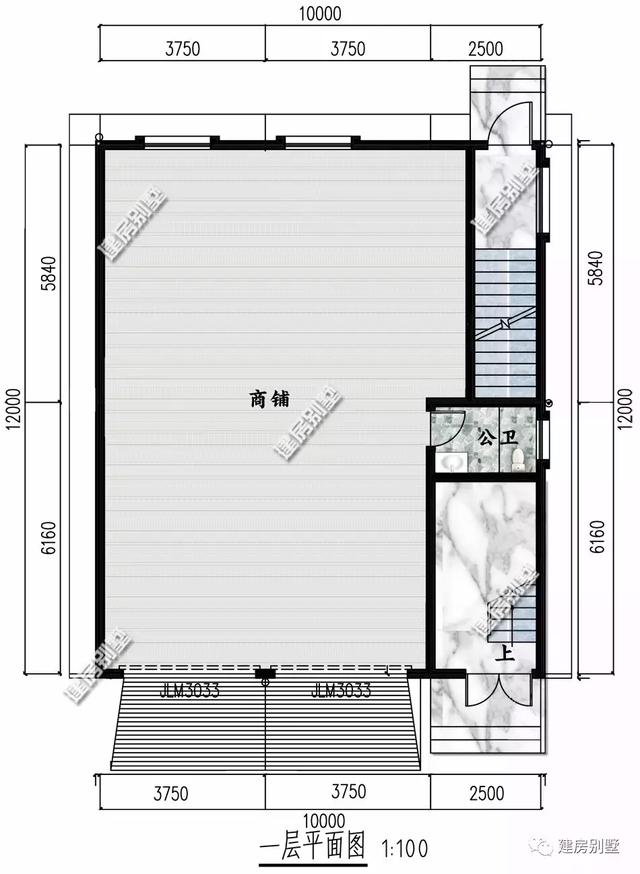
室内平面图:

一层:布局图:整个楼层,除了设计了一间公卫和方便上下楼的双跑式楼梯外,其余空间都是用来做商铺的,可以自家用,也可以租出去收房租。

二层:布局图:一室两厅一厨两卫,主卧室内设主卫,客厅挑空配旋转式楼梯很大气。

三层布局图:两室一厅两卫,两间卧室内都设独卫,另配有休闲小厅、书房和小型储物间。

四层布局图:两间卧室设计备用,观景露台方便用于晾晒。
转载请注明出自轩鼎别墅设计://www.lemeizhai.com/