农村自建别墅中有很多种风格,如欧式,中式,现代式等等,每种风格都有着他们独特的美感。现在的别墅设计都比以前有了质的提升,款式更多了,质量跟实用性也大大提高。可以说那种户型都不错,今天小编推荐一款别墅,建房就得这么建,质量还有保障。
效果图:

别墅基本信息:
户型编号:JF9518
主体毛坯参考造价:36-42万
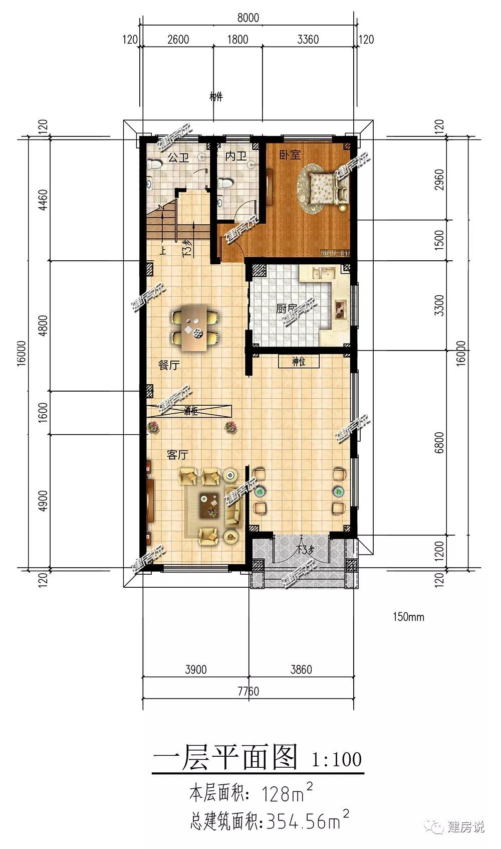
占地面积:128平方米
建筑面积:354.56平方米
开间8米,进深16米
框架结构,建筑高度12.35米
全景展示:



别墅外墙主体以米黄色外墙真石漆装饰,屋顶是红色西班牙瓦,整体造型清新不落俗套,散发温馨浪漫的气息。
室内布局设计:

一层:入户即宽敞的客厅,方便接待亲朋好友;厨房门朝向避免了与客厅直接相通,干净卫生;设有1间卧室,布局合理。

二层:设有3间卧室,主次分明;客设有书房,适合办公学习;娱乐室供家人娱乐玩耍。

三层:设有2间卧室,主次分明;设有书房,给房子增添书香气;宽敞露台适合晾晒,养殖花草。
转载请注明出自轩鼎别墅设计://www.lemeizhai.com/