很多人都会有建别墅的想法,但真正落实的很少。有很多人喜欢大面积的别墅,但小面积的也不少,不比大面积大差。今天这款三层别墅推荐给大家,希望你们喜欢。
效果图:

别墅信息:
编号J3171
占地尺寸:8m×12.3m
占地面积:106.45平方米
建筑面积:295.83平方米
结构类型:砖混结构
镜像图:


室内布局设计:

户型:开间只有8米,做成了4×4米的格局。进门是玄关,可以根据农村当地生活特色设计堂屋,玄关和复式客厅一体,使空间感更开阔。厨房和餐厅设计在北向,有侧门方便出入,一楼还设计有一间卧室,在中间位置,相对安静舒适。

二层:客厅上空旁边有一个起居室,能增进一楼和二楼的交流空间。二层2个卧室,主卧室带有内卫,确保业主私人空间不被打扰。

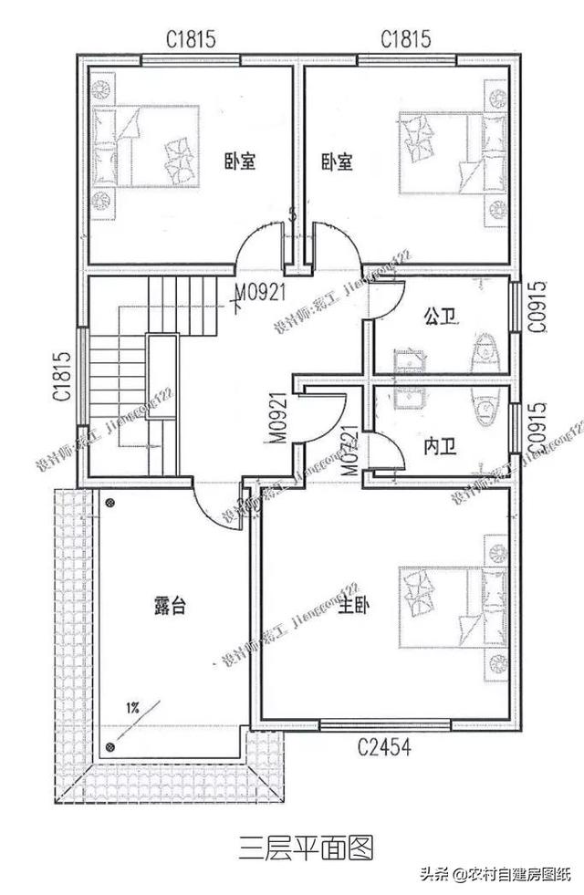
三层:设计有三间卧室二个卫生间,宽敞的屋顶露台,可以晾晒,可以观景,还可以做阳光房,与暖阳亲密接触。
转载请注明出自轩鼎别墅设计://www.lemeizhai.com/