有钱了,千万别在城里买房,现在的房价还是很高,就算买得起,还不如在乡下建房呢。返乡建房造价便宜,不到一百万就能建一套豪华大气的别墅,不论什么款式,建房已经成为了潮流。今天趁着小编的需求还不错,就给大家推荐一款欧式宫廷范儿十足的欧式别墅,希望你们会喜欢。
效果图:

基本信息:
开间14.5米
进深12.6米
占地面积162.3平方米
建筑面积516.92平方米
结构形式为砖混
主体造价50万以上
镜像图:

建筑整体为欧式宫庭风,入户门直通二楼,大气开阔。宫庭式八角窗,多面采光,保证客厅的观景视野。素净淡雅的外观配色,给人舒适悠远的观感。
室内布局设计:

一层:入户玄关承接室内室外的空间,又可以作堂屋满足农村风水需求;宽敞的客厅还带有观景阳台,厨房和餐厅相邻,有侧门方便出入。主卧室朝南,并带有内卫,方便家里的老人起居。娱乐室满足亲友聚会娱乐所需。

二层:朝南的主卧室为套间设计,带有卫生间、书房和阳台,方便主人公休息和办公。

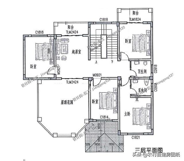
三层:设计有4间卧室,2个卫生间,另有起居室和屋顶花园。
转载请注明出自轩鼎别墅设计://www.lemeizhai.com/