在乡下建别墅,不要追求房子有多大,农村的地就那么大点儿,二层别墅就最符合农村的环境,三层、四层的有违和感;但不是所有地区都只能建二层别墅。但今天小编不介绍别的别墅,就介绍二层简欧别墅,如果这款别墅符合你家的需求,那你可赚到了。来一起看看吧。
效果图:

基本信息:
占地尺寸:11.1m×10.6m
占地面积:124平方米
建筑面积:246平方米
结构类型:砖混结构
主体造价26-32万
镜像图:

这款户型外观简约大气,通透宽敞的落地窗,不管是在外观的观感,还是室内的舒适性都非常的出色。底层深色的文化石搭配二层黄色的外墙涂料,屋顶为灰色的屋面瓦,白色的线条分割出层次分明的外立面,给人舒适耐看的感觉,并透着温馨与活泼。
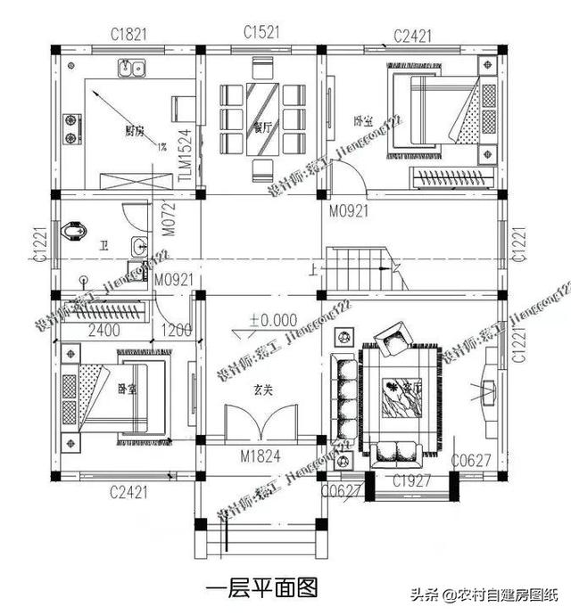
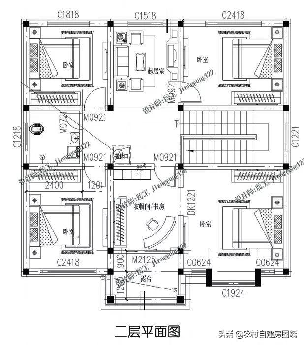
室内布局设计:

一层:入户门厅与玄关承接,客厅在一侧,厨房在西北角与餐厅连在一起。

二层:设计有4间卧室,主卧室带有衣帽间和书房,方便休息和工作。
转载请注明出自轩鼎别墅设计://www.lemeizhai.com/