有实力就不要藏着掖着,展现出了,有胆量展现自己的人是不会错的,有胆气的人更能成功。在当今的社会环境里,没有实力连个说话的机会都没有,要想出人头地就要加倍的努力。今天小编推荐一款新中式别墅,这绝对是实力的展现。
效果图:

别墅信息:
参考造价:82-100万
占地面积:241.17平方米
建筑面积:790平方米
开间21.44米,进深14.5米
框架结构,建筑高度18.024米
全景展示图:




别墅外墙以白色真石漆装饰,灰色仿大理石涂料、棕色涂料、灰色仿古贴面砖搭配做点缀,屋顶是红色西班牙瓦,和乡村的风景非常契合。
室内布局设计:

一层:入户是堂屋,两家人共用区域,格局左右对称,居住2户家庭。

二层:挑空设计,便于通风与采光;卧室大小适宜,卫生间设置充裕,方便起居。

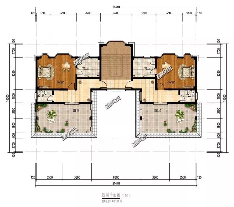
三层:布局人性化,起居方便;露台便于欣赏乡村靓丽风景。

四层:2露台面积大,满足日常晾晒、打造空中花园、烧烤活动等娱乐需求
转载请注明出自轩鼎别墅设计://www.lemeizhai.com/