欧式复古风格的别墅是最有味道的,就像我们的中式风格别墅一样。生活就要有情趣跟格调,今天这款新式复古别墅希望你们喜欢。7×12米的最适合这样的别墅,有钱就不怕没有好房子,建房就要趁早,越早越安心,宜早不宜迟嘛。
效果图:

别墅信息:
编号:J3127
结构类型:砖混
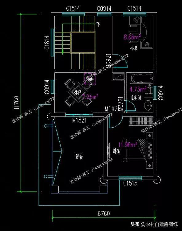
占地尺寸:6.76*11.76m
占地面积:81.07平方米
建筑面积::225.12平方米
室内布局设计:

一楼:构造非常简单,主要为打造华丽整洁及空间效果且各自的占有面积都比较大,不一样的外围门墙设计,打造出全新的效果。

二楼:主要有两间房间,各自房间都设有单独的卫生间,给双方都留有了独立空间,在相互独立下互不干扰,有很好的隔音效果。

三楼:主要为休闲区。里面设有书房,娱乐区,卫生间,还有一间卧室,比较适合客人居住。因为三楼的为主要玩乐之地。
转载请注明出自轩鼎别墅设计://www.lemeizhai.com/