今天给大家介绍一款福建土豪私人订制的别墅,这款别墅从图上是不是特别豪华?真的羡慕有钱有宅基的人呢,但这款别墅你绝对猜不到,它在当地只是普通的款式。这样好的别墅居然只是普通的,看来这个地区的认识真有钱啊。这样的豪华别墅你喜欢吗?心动吗?
效果图:

别墅信息:
参考造价:49-57万
占地面积:136平方米
建筑面积:472平方米
开间10.35米,进深13.8米
异形柱框架结构,建筑高度16.747米
全景展示图:




别墅外墙以浅黄色真石漆搭配褐色外墙砖,屋顶是暗灰色西班牙瓦,多窗多露台,采光和通风没得挑。
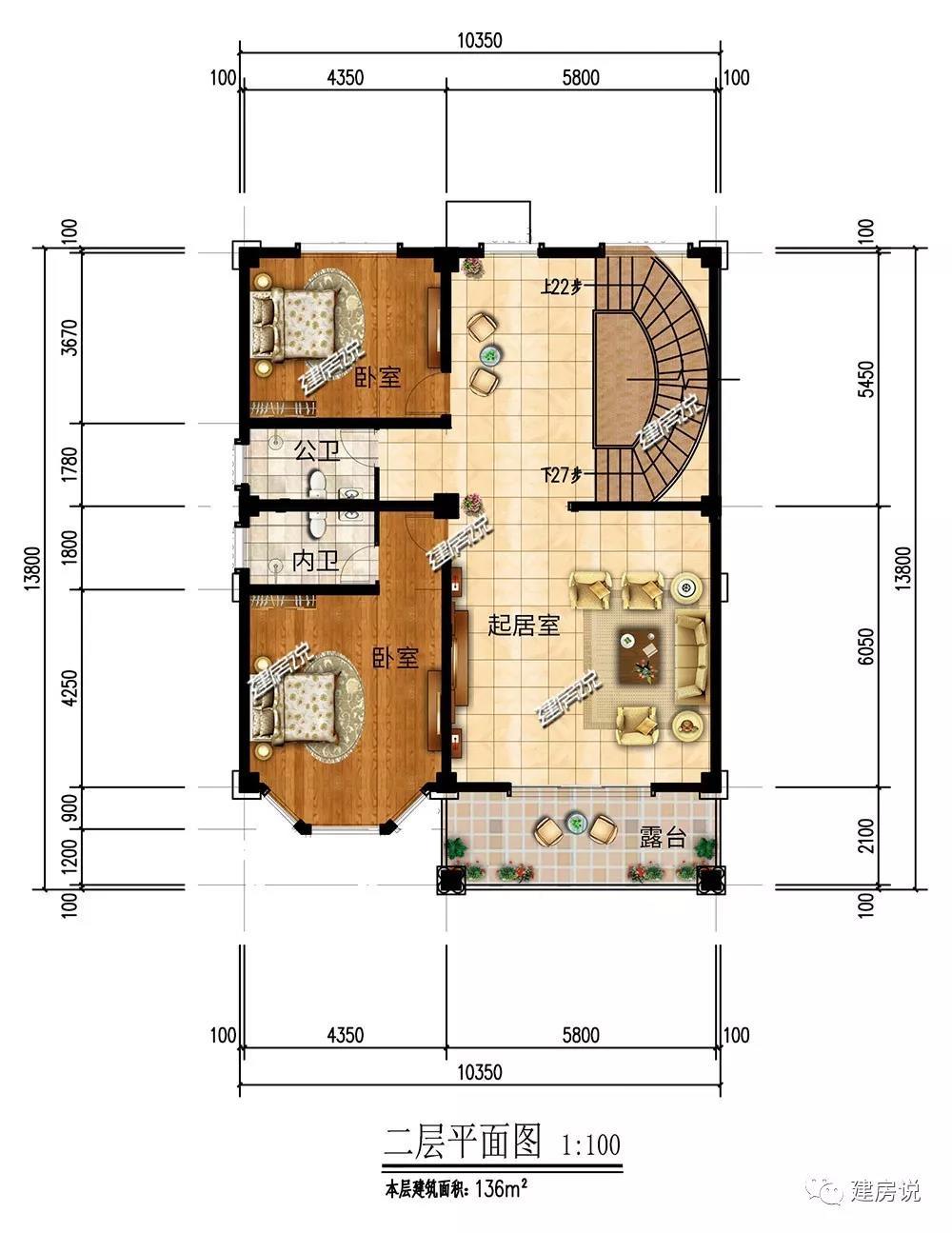
平面布局图:

一层:入户门厅保护隐私,客厅宽敞大气,视线明亮;厨房和餐厅单独建造在后院,洁污分离。

二层:起居室带露台,把家人聚集在一起,方便沟通感情;2个卧室大小适中;弧形楼梯造型优美。

三层:和二层格局相同,上下水结构对齐,降低施工难度;卧室充裕,满足家人起居。

四层:卧室带内卫,方便起居;健身房培养家人健康生活习惯;大大的露台,满足晾晒,也可打造空中花园,烧烤区。

隔热层:储物间存放家庭杂物和农作物,使得家里干净整洁;生活水箱储存生活用水,以备不时之需。
转载请注明出自轩鼎别墅设计://www.lemeizhai.com/