建别墅是一辈子的大事,建好了能受用一辈子,说不定下一辈还能享福呢。农村建房最重要的是有地,没有地就建不了别墅。还有,建别墅最忌讳的就是跟风,盲目的跟风很容易进入误区,有时会出现问题,所以说建别墅一定要有自己的主见,适合自己的才是最好的。今天这款经典户型推荐给大家。
效果图:

别墅信息:
编号:3395
结构形式:框架
占地尺寸:11.7m×12m
占地面积:160㎡
建筑面积:360㎡

一层:门厅,客厅,2卧室,厨房,餐厅,卫生间

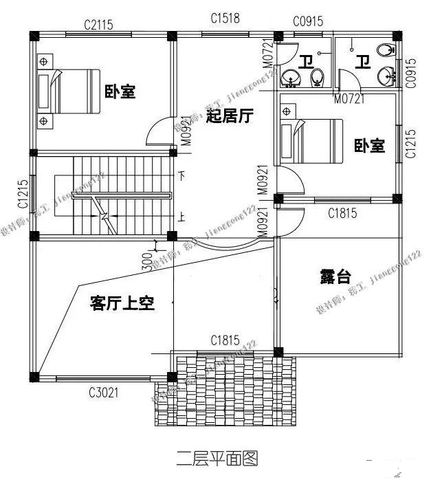
二层:卧室,卫生间,卧室(附卫生间),露台二楼两间卧室一般完全满足家用,起居室提供了一个睡觉前闲聊场所,露台也适合饭后小憩,欣赏田园景色。

三层:卧室,卧室(附卫生间),书房,阳光房,露台三楼设有一个书房,阳光厅,书房是藏书的地方,也是学习工作的地方,与阳光厅结合在一起,在阳光厅阅读自己喜欢的书
转载请注明出自轩鼎别墅设计://www.lemeizhai.com/