年轻时没有适应世俗的性格,生来就爱大自然的风物。从少年到青年之时,不得不为了生计离开乡村,转眼间以远离田园已十余年。笼子里的鸟儿怀念以前生活的森林,池子里的鱼儿思念原来嬉戏的深潭。相信很多人也有这样的感觉,这就是思乡之情吧。挣了钱就回到家乡吧,建一栋好房子,见见多年未见的好友。
效果图:
别墅信息:
毛坯参考造价:55-62万
占地面积:146.3平方米
建筑面积:534.57平方米
开间11.5米,进深13.5米
砖混底框结构,建筑高度14.45米
别墅细节图:


别墅外墙主体以米白色真石漆为主,木纹色真石漆和仿文化石外墙砖搭配装饰,多窗多露台,年轻时尚,简约大方。
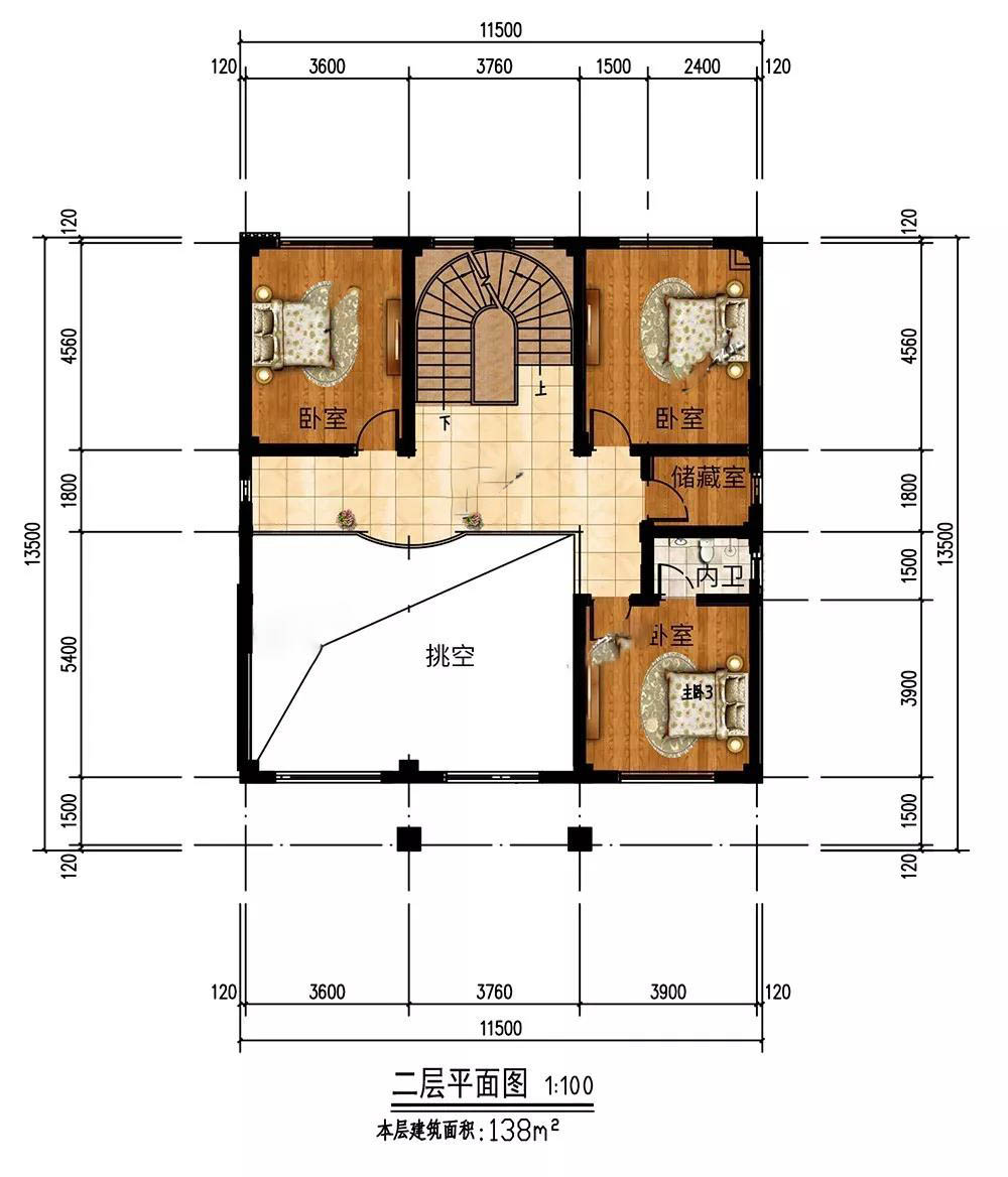
平面布局图:

一层:入户客厅,方便接待亲友;厨房餐厅设在东北侧,洁污分区,干净舒爽;2个卧室,其中1间带内卫,方便老人居住。

二层:3间卧室,满足一家人的居住;客厅挑空,使室内视野更加明亮开阔。

三层:4间卧室,2个内卫,1个公卫,满足大家庭生活起居,居住有余,可以留作客房;1个露台,闲时可以养花赏景。

四层:1个大露台,可种植花草、烧烤喝酒、亲友聚餐等;东侧套房,带有书房、衣帽间、内卫,功能丰富,生活享受。

五层:观光楼梯入屋顶,可打造屋顶花园,种植花草、观景赏月,喝茶聊天,提升生活情调。
转载请注明出自轩鼎别墅设计://www.lemeizhai.com/