虽然中华有上下五千年,但是追溯世界的文化起源还是得看希腊,提起希腊来大家想到最多的可能是希腊童话,但是作为人类文明发源地,希腊的建筑是真的非常令人震惊,今天我们就来介绍一款电影的希腊风二层别墅房。
如果你在老家有块宅基地,不建栋别墅简直是浪费了!而且自建别墅实惠实在,只要你选个好户型,花小钱也能住上气派的别墅。比如今天小编推荐的这款二层别墅,设计精湛,布局合理实用,怎么看都是建房的不二之选。

细节图:


全景图;



别墅信息:
参考造价:27-33万
占地面积:109.44平方米
建筑面积:261.4平方米
开间18.04米,进深11.34米
砖混结构,建筑高度9.875米
别墅外墙主体以米黄色仿大理石真石漆为主,墙角搭配灰色贴面砖;外加精致的腰线,山花、花瓶围栏等欧式元素,清新又不落俗套。
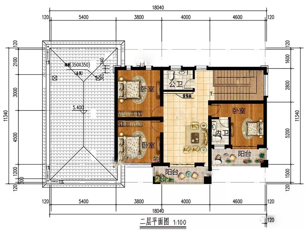
平面布局图:

一层:入户设玄关,客厅宽敞,接待亲友方便;2间卧室温馨舒适;餐厅厨房独立,洁污分离;大大的户外平台,亲近自然,可以喝茶聊天。

二层:3个卧室,主次分明,满足家人日常休息,温馨舒适;1个起居室,可供家人休闲娱乐;2个阳台,满足室内通风采光,还可以晾晒衣物,种植花草等
转载请注明出自轩鼎别墅设计="://www.lemeizhai.com/" _src="://www.lemeizhai.com/">://www.lemeizhai.com/