在过好几个月冬天就到了,有一个温暖的居住环境是多么的舒服啊。建一栋有土炕的别墅,等到了冬天就可以享受东北人的乐趣了,所以趁着冬天没到赶快建房吧。今天这三款有土炕的别墅推荐给大家,南方的朋友,快来看!
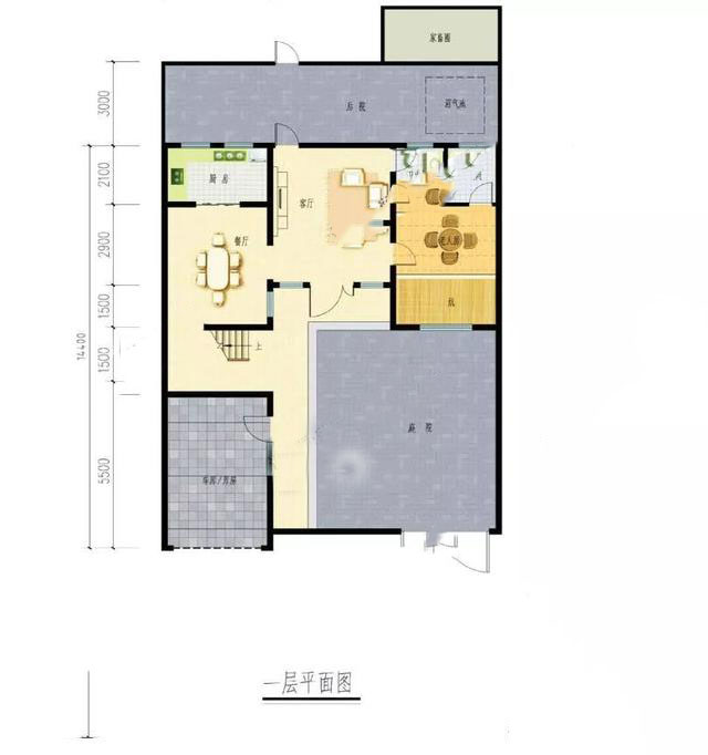
户型一:

占地尺寸:11.4m×14.4m
占地面积:101.6平方米
建筑面积:203.8平方米
室内布局设计:


中式风格三合院建筑,分为前后两个院落,前院以景观休闲为主,后院以农业生产为主。建筑立面灰瓦白墙,简洁明快。
户型二:

占地尺寸:12.9m×16.2m
占地面积:99.41平方米
建筑面积:192.42平方米
室内布局设计:


进门有一个大大的庭院,和开放式车库,主建筑区设计有客厅,厨房、带土炕的老人间、次卧和卫生间
户型三:

占地尺寸:13.2m×9m
占地面积:112.33平方米
建筑面积:197.39平方米
室内布局设计:


这款建筑在立面设计上采用三段式的处理手法,屋顶为红色的,外墙以米黄色为主,辅以少量白色的线条,整体感觉丰富细腻,美观大方
转载请注明出自轩鼎别墅设计://www.lemeizhai.com