今天给大家介绍的这款三层别墅,为欧式风格,开间窄,进深长,外观大气,复式带堂屋,功能齐全。建筑尺寸:11*14.36米。外观简单大气,具有大户风范,符合现代人的生活观念,适合追求高品质生活的成功人士。作为一个有成就的人,也该有一套自己的别墅,这款别墅就不错,来看看别墅设计吧!
效果图:

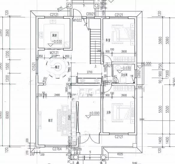
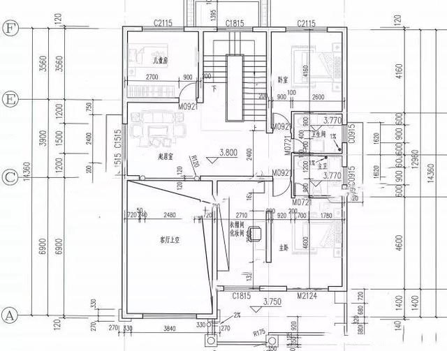
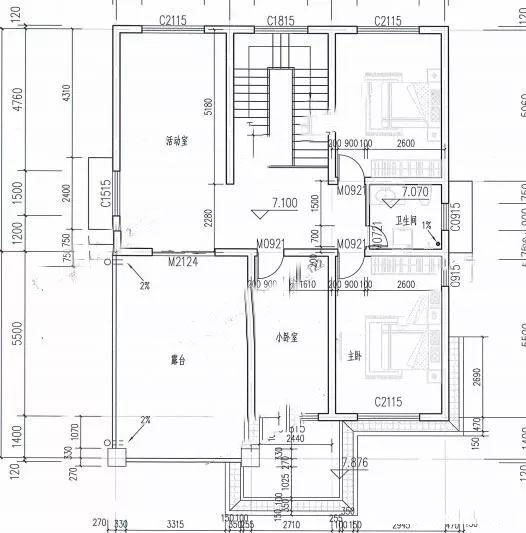
室内布局设计:

一层:超大的客餐厅,既能喝茶待客,又能棋牌娱乐,设计有2间卧室,方便老人和待客。带堂屋的设计,很符合农村的生活需求。

二层:设计主卧室都配有衣帽间和卫生间,打造舒适私人空间。另有次卧室和一间儿童房,起居室正对一楼客厅下方。

三层:主要为休闲娱乐场所,设计有3间卧室,露台和活动室,周末的时候可约好友一起放松心情。
转载请注明出自轩鼎别墅设计://:www.lemeizhai.com