我们都希望能建一套性价比好价格又便宜的房子,但是往往一件事未必能够如我们所愿,很可能出现这样那样的情况,房子建好后才发现不实用而且造价高昂,那我们可要问了怎样才能建一套造价不高实用性好的房子呢。那么今天我来给大家介绍一套质美价廉的好房子。
如图下所示:


基本信息:
占地尺寸:10.2米x9.9米
占地面积:106.25平方
建筑面积:206平米
建筑结构:砖混结构
造价估算:20万
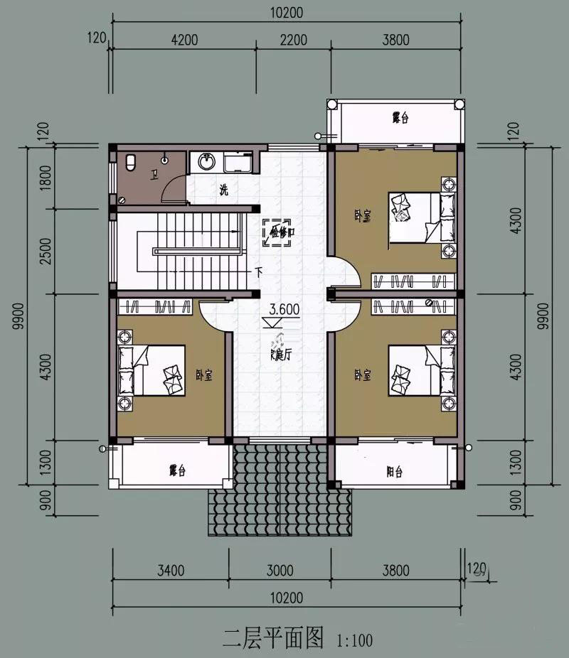
平面布局图:

一层:设计有一室一厅一厨2卫;

二层:设计有3室1厅1卫,总共4间卧室。
转载请注明出自轩鼎别墅设计="://www.lemeizhai.com/" _src="://www.lemeizhai.com/">://www.lemeizhai.com/