您好,欢迎访问轩鼎房屋图纸网,轩鼎建筑为您提供新农村房屋设计图、别墅设计图纸以及别墅定制设计与咨询服务。
 
 
  热门搜索:自建房 别墅设计 房屋设计图   
网站首页 图纸大全 定制设计 作品展示 建房图文 联系我们
一层房屋图纸
二层房屋图纸
三层房屋图纸
四层以上图纸
双拼房屋图纸
其他建筑图纸
 
 
 您的位置:首页 ->> 建房图文 ->> 欧式别墅见了他也自愧不如
 
 

欧式别墅见了他也自愧不如

发布时间:2019/11/23 17:10:47 点击数: 2468次 

说起村里最多的房子,欧式肯定要位列前面,是的,欧式建筑在农村就是这么多见。但是看多了,我们也腻,欧式建筑虽说以轻奢为世人所喜欢,但是要论美观性跟实用,古雅与现代结合的中式美宅当属第一。如果说你对欧式建筑已经毫无感觉,那么今天这栋新中式中式美宅,你可不要错过,看一眼就能让你知道,什么才是真正的农村自建房。

 

 

效果图:

 微信图片_20191123154405.jpg

 

别墅信息:

 

占地面积:103平方米

 

建筑面积:253.2平方米

 

开间15米,进深10

 

框架结构,建筑高度13

 

别墅细节图:

 

 

别墅屋顶是灰色西班牙瓦,外墙用白色和灰色真石漆搭配装饰,用深褐色真石漆装饰门窗,配上些许现代风的玻璃围栏,给予中式庭院不一样的美。

 

 

平面布局图:

 

 

 微信图片_20191123154415.jpg

 

 

一层:入户是小院,再到客厅,空间宽阔,待客温馨;厨房餐厅呈半开放式,上菜方便,用餐愉快;设有室内车库,方便停车,若不做车库可做储藏室使用。

 

 

 微信图片_20191123154417.jpg

 

 

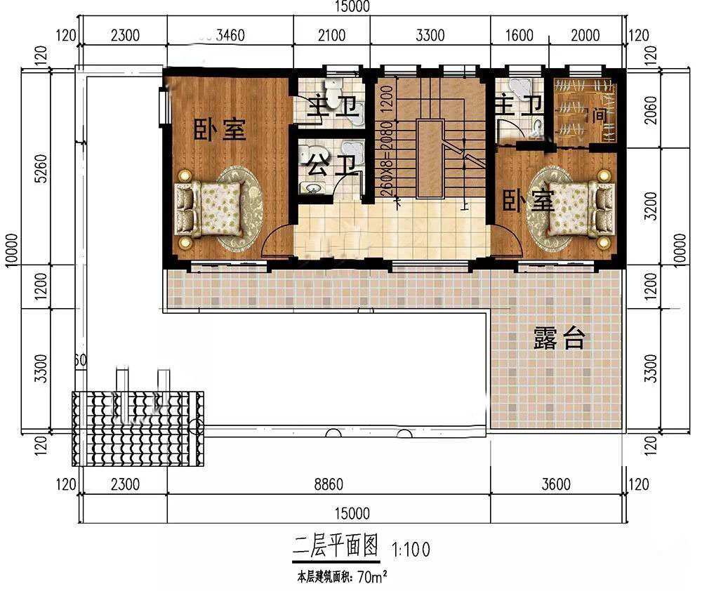
二层:2个卧室,3个卫生间,其中一间带衣帽间,居住温馨舒适;在春秋季节,可以在露台上看书观景,享受微风。

 

 

 微信图片_20191123154419.jpg

 

 

 

三层:2个连通露台的卧室,居住观景效果好;设有书房,办公写作,不被打扰;偶尔可在露台种种花草,丰富生活。

 

 

 微信图片_20191123154422.jpg

 

闷顶层:起到隔热保温的作用;设储物间,可以放置生活闲置物品;设有生活水箱,可防止特殊情况下的生活用水


 转载请注明出自轩鼎别墅设计="://www.lemeizhai.com" _src="://www.lemeizhai.com">://www.lemeizhai.com 

 
· 19.8×14米的农村别墅设计、复式...
· 房屋设计图!快看,这些房屋设计...
· 庭院景观石该如何摆放(庭院景观...
· 传统的外贴砖设计和淡黄的墙体融...
· 欧式简约别墅推荐给大家
· 现代别墅设计:融合多元,筑就理...
· 密度板是最差的材料吗(密度板的...
· 别墅设计:看看小宅基地。 三层...
  关于我们 网站事务 帮助中心
客服热线:400-079-6579
客服QQ:10928711 10928755 10928799
地址:山东省潍坊财富大厦1801
 

预定须知
顾客必读
配送方式

 


Copyright 2016 www.lemeizhai.com All Rights Reserved ICP备案序号:鲁ICP备2026012448号-1
轩鼎房屋图纸 电 话:0536-3385581 3385582 传 真:0536-3385581 地 址:山东省潍坊财富大厦1801


keywords:房屋设计图 房屋设计图 农村房屋设计图 农村房屋设计图 建房图文