两个店面设计的="://lemeizhai.com" target="_self">农村自建房屋,既有商业的也有住宅的,是最理想的房子
如果你在你的家乡有一个家园,它将在城镇或城镇附近有优势。很多人想花钱买这样的宅基地,因为你可以建一栋商住两用的房子,在一楼开店,这样不仅可以住自己的房子,还可以省钱。为什么不呢?
单元1
基本信息:1012米,形状很简单。通常,商品房的形状不会太复杂。外墙用棕色真石漆和黄色真石漆装饰,屋顶用红色瓷砖装饰。





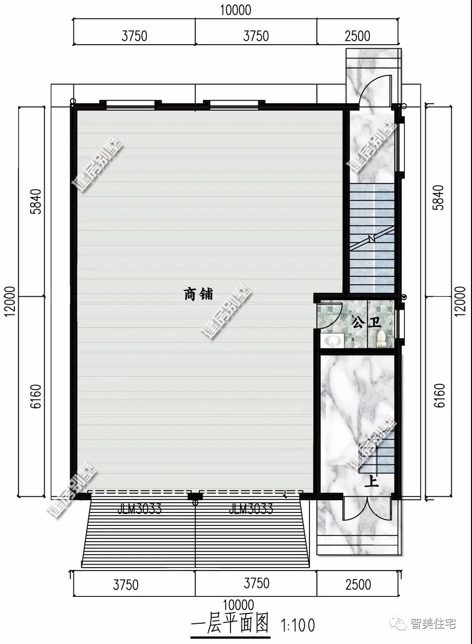
平面图:一楼有一个很大的店铺空间,可以作为一个很大的店面;二楼有一个房间,两个大厅,一个厨房和两个浴室;客厅被设计成空的;三楼有两个房间,一个大厅和两个浴室,有书房和储藏室,四楼有两个房间,一个大厅和两个浴室,还有一个大型户外休闲露台。
户型二
基本信息:10.310.2米,外墙用文化石和浅色真石漆装饰,屋顶用蓝色瓷砖装饰。





平面图:一楼设有一室一厅一卫,休息空间为商铺,二楼设有休闲娱乐室,带单间浴室和基本生活空间,三楼三室一厅三卫一书房,四楼两室一厅两卫一书房,室外休闲露台。
你想在你的家乡建一座商住两用的房子吗?如果在我的家乡有这样一个家园,它将有优势。
转载请注明出自轩鼎别墅设计="://lemeizhai.com" target="_self">://www.lemeizhai.com