三种="://lemeizhai.com" target="_self">农村二层小别墅的设计图,不仅使面子更加灿烂辉煌你
并且,现在越来越流行,要知道回农村老家用自各儿盖别墅,这主要是因为这些个农村出身的朋友普遍有“留根”的情结。 回到故乡盖房子不仅为了父母,从此往后自各儿上了年纪也可以作为自各儿的养老房间。 生命既然从这里开始,就从这里结束。 你说呢今天推荐这非常大气实用的二层农村别墅户型。 建造那个不仅有面子,还能让你更加可灿烂辉煌。
方案1 :高贵三开间二楼小别墅
房屋概况:本户型是三个典型的英式二楼小别墅的修订图,农村建筑师的要求越来越高,千篇一律的欧式已经不能满足他们的要求。 英式还有一种美。 这座别墅采用英式风格,外观线条优雅,处处精致高贵。 带有屋顶背层和3个圆锥窗,土黄色的真石漆和深褐色的斜面屋顶组合,看起来很舒服。 整个空间的版结构舒适大气实用。
高贵的三开间二层的小别墅
高贵三开间二楼小别墅残奥表




高贵三主屋二楼小别墅一楼平面图
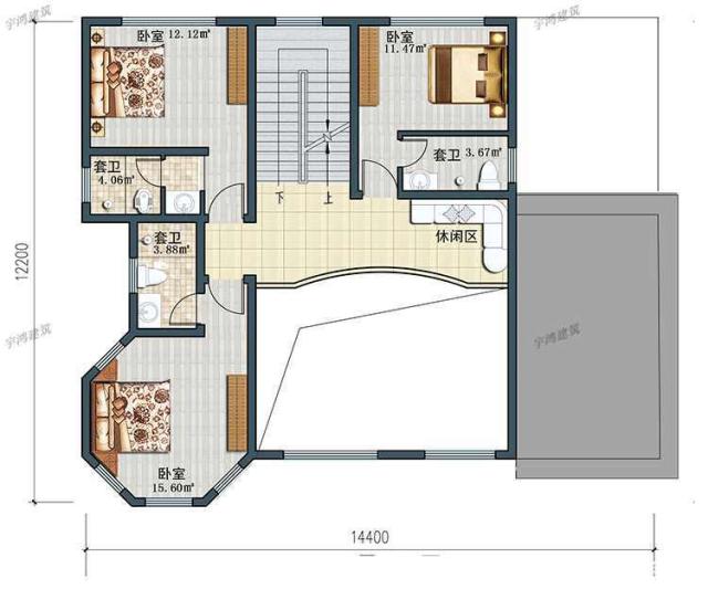
高贵三主屋二楼小别墅二楼平面图
高贵三主屋二楼小别墅阁楼平面图
方案2 :简单大气农村二层建筑
房屋概况:本户型是农村二层建筑简单大气设置修订方案,建设小别墅推荐户型设置修订图,复式客厅设置修订,占地面积不足150平方米,外墙用白色真石漆装饰,组合蓝坡屋顶,整体色彩古朴自然,层次感,室内布局光滑在框架结构下,主体成本在42万左右的很多人喜欢欧式风格的乡下的田园风格别墅,配合欧式风格的外观、乡下的稻田、草坪、树木的美丽地貌景观,如画一般,肉眼看不见,而今天向大家推荐的这个田园风格别墅,一定能成为人眼美丽的地貌景观。
简单大气农村二层建筑的推荐
简易大气农村二层大厦推荐残奥表



单纯大气农村二层建筑推荐一层平面图
简单大气农村二层建筑推荐二层平面图
场景3 :带庭院的中国式别墅外观效果图
房屋概况:本户型是一套带庭院的中国式别墅效果图和设施修订图,包括外观摄影图片,独立停车库,空间大,卧室多。 开间比较大,外墙用灰色瓷砖装饰,院子里种了几棵树,养了花草,增加了生活的乐趣。 在农村盖房子的宅基地是有限制的,但一般来说有建造庭院的空间,庭院不仅有实用性,空间感也增加了。 现在农村也有很多车,可以把车停在庭院和停车库。
带庭院的中国式别墅外观效果图带庭院的中国式别墅外观效果图残奥表



带庭院的中国式别墅外观效果图1层平面图
带庭院的中国式别墅外观效果图2层pmt
转载请注明出自轩鼎别墅设计="://lemeizhai.com" target="_self">://www.lemeizhai.com