="://lemeizhai.com" target="_self">百平的三层欧式小别墅,想住得漂亮。 老百姓想盖房子看看这里

现在的房地产和开发商是有钱人建房子,但是条件普通的人买不起房子,他们从不介意,所以天天下几场馅饼雨也不会碰到希望房价下跌的人的头。 你没听说过把钻石降价吧。 那你为什么要把房子降价呢? 他们不会给我们一般人盖房子,所以我们用自各儿盖。 今天,小安向大家推荐百平三层欧式小别墅。 想住得帅。 老百姓想盖房子看看这里
这是占地面积一百平的三层欧式小别墅,别墅的开放室8.8米,深度10米,主体成本25万左右。 这座别墅采用砖结构形式,外墙采用统一材料和颜色装饰,展示别墅的介绍大气。 屋顶和屋顶用墨水的蓝色琉璃瓦,与外壁的颜色对比鲜明,别墅的立体感表现出来,别墅看起来不扁平化。 别墅的正面有一个大的落地窗,用拱形的窗头装饰,带着典雅而古雅的气息。



一楼的入口是宽敞的客厅,左侧是卧室,厨房和餐厅在东北角,公共厕所在北侧,远离厨房,可以避免气味混杂。
二楼有两间卧室,分别分布在西南角和东北角。 东南犄角旮旯的客厅有阳台,夏天可以享受凉爽的清风,冬天可以享受满天的雪景。
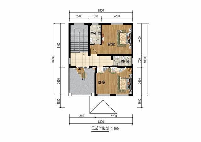
三楼还有两间卧室,东侧两个拐角处,北侧厕所的位置与一二楼的位置始终相同,节约资源,节约施工成本和时间。 西南犄角旮旯露台可以使室内环境更加优雅健康。
小编介绍的这座现代简欧式二楼别墅,喜欢的小伙伴关注私信小编,想知道更多别墅图纸,可以下喀呖声了解更多。 小别墅,想住得漂亮,老百姓想盖房子看这里!
转载请注明出自轩鼎别墅设计="://lemeizhai.com" target="_self">://www.lemeizhai.com